
Christian Wieckhorst Immobilien
Herrn Christian Wieckhorst
095 ···
Nr. anzeigenPreise & Kosten
Provision für Käufer
3,57% inklusive 19% MwSt.
Lage
Ihre Eigentumswohnung liegt sehr zentral und doch ruhig im Stadtteil Scheuerfeld.
Geschäfte des täglichen Bedarfes, sowie Arzt, Apotheke, Kindergarten und Schule sind fußläufig erreichbar.
Ihre Kinder werden begeistert sein, der Abenteuerspielplatz "Meisenweg" ist bequem und sicher in einer Minute erreichbar.
Mit...
Die Wohnung
Wohnungslage
1. Geschoss
Bezug
sofort
Wohnanlage
Energie & Heizung
Warum sehe ich diese Anzeige? – Du siehst diese Anzeige basierend auf Ihrer Navigation auf unserer Website und den Suchkriterien, die du verwendet hast.
Energieausweistyp
Verbrauchsausweis
Gebäudetyp
Wohngebäude
Baujahr laut Energieausweis
1994
Wesentliche Energieträger
ERDGAS_LEICHT
Gültigkeit
bis 19.08.2028
Endenergieverbrauch
196,30 kWh/(m²·a)
Weitere Energiedaten
Energieträger
Gas
Heizungsart
Zentralheizung
Details
Objektbeschreibung
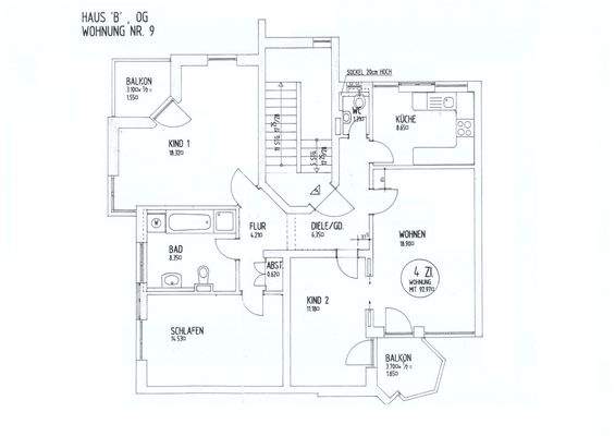
Sie erwerben eine tolle 4- Zimmerwohnung in der Dr.-Otto-Straße in Coburg/ Stadtteil Scheuerfeld.
Ihre gut 90m² große Wohnung befindet sich im 1.Obergeschoss einer kleinen Wohnanlage mit nur fünf Wohneinheiten. Die zwei Wohnungen im 1.OG wurden zusammengelegt. So bewohnen Sie die komplette erste Etage.
Alle Räume sind...
Ausstattung
Ihre Wohnung wurde soeben frisch gestrichen und somit steht sie Ihnen direkt zur Verfügung.
Im Flur liegt Echtholzparkett, Küche, Bad und WC sind ordentlich gefliest.
Die Fassade wurde soeben frisch und freundlich saniert.
Preisinformation
1 Tiefgaragenstellplatz
Weitere Informationen
Sonstiges
Ein Tiefgaragenplatz, direkt am Haus ist im Kaufpreis enthalten.
Neben einem Kellerabteil mit eigenem Sromanschluss dürfen Sie Trockenraum und Fahrradkeller gemeinschaftlich nutzen.
Die Hausverwaltung ist vorbildlich, Gartenpflege, Treppenhausreinigung und Hausmeisterservice sind inklusive.
Die Wohnung...
Anbieter der Immobilie
Christian Wieckhorst Immobilien
Mohrenstr. 10, 96450 Coburg
Online-ID: 2mhqr5g
Referenznummer: 366
Finde Angebote wie dieses
Hier geht es zu unserem Impressum, den Allgemeinen Geschäftsbedingungen, den Hinweisen zum Datenschutz und nutzungsbasierter Online-Werbung.