
Wilhelm Immobilien RMNC GmbH
Frau Maria Roser
004 ···
Nr. anzeigenPreise & Kosten
Provision für Käufer
3,57 %
Lage
Hasselroth
Hasselroth ist eine Gemeinde im hessischen Main-Kinzig-Kreis, die sich erst 1971 mit den Orten Gondsroth und Neuenhaßlau zusammenschloss. Die Gemeinde wird im Norden von dem Fluss Kinzigaue und am Ostrand des Rhein-Main-Gebietes von den nordwestlichen Ausläufern des Spessarts eingegrenzt. Gelnhausen liegt ca...
Das Haus
Kategorie
Einfamilienhaus
Bezug
nach Vereinbarung
Energie & Heizung
Warum sehe ich diese Anzeige? – Du siehst diese Anzeige basierend auf Ihrer Navigation auf unserer Website und den Suchkriterien, die du verwendet hast.
Energieausweistyp
Verbrauchsausweis
Gebäudetyp
Wohngebäude
Baujahr laut Energieausweis
2001
Wesentliche Energieträger
OEL
Gültigkeit
bis 08.02.2029
Effizienzklasse
D
Endenergieverbrauch
124,10 kWh/(m²·a)
Weitere Energiedaten
Energieträger
Öl
Details
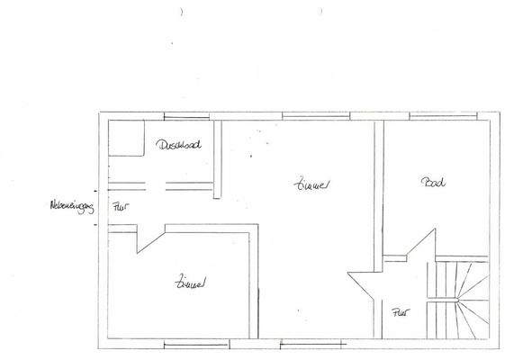
Objektbeschreibung
Vielseitiges Einfamilienhaus in ruhiger Lage von Niedermittlau
Dieses großzügige Einfamilienhaus mit rund 110 m² Wohnfläche auf zwei Etagen befindet sich in Hasselroth-Niedermittlau, ruhig gelegen am Ende einer Anliegerstraße. Das 1972 erbaute Haus bietet vielfältige Nutzungsmöglichkeiten - auch das Arbeiten von zu...
Ausstattung
Erdgeschoss
-Diele
-Küche
-Arbeitszimmer
-Schlafzimmer
-Wohn- und Esszimmer
Untergeschoss
-Flur
-Badezimmer
-Aufenthaltszimmer
-Kinder-, Arbeits- oder Gästezimmer
-Duschbad
Außenbereich
-2 Stellplätze
Preisinformation
2 Stellplätze
Weitere Informationen
Sonstiges
PROVISIONSHINWEIS:
Die Käuferprovision ist in Höhe von 3,57 % (inkl. 19% MwSt.) auf den Kaufpreis mit dem Zustandekommen des Kaufvertrages (notarieller Vertragsabschluss) verdient und fällig. Gemäß §656c BGB beträgt die Verkäuferprovision ebenso 3,57 % (inkl. 19% MwSt.) auf den Kaufpreis und ist fällig und...
Anbieter der Immobilie
Wilhelm Immobilien RMNC GmbH
Quellenring 25, 63619 Bad Orb
Online-ID: 2mhr758
Referenznummer: 5622
Finde Angebote wie dieses
Hier geht es zu unserem Impressum, den Allgemeinen Geschäftsbedingungen, den Hinweisen zum Datenschutz und nutzungsbasierter Online-Werbung.