

Mr. Lodge GmbH
Firma Mr. Lodge GmbH
089 ···
Nr. anzeigenPreise & Kosten
Warum sehe ich diese Anzeige? – Du siehst diese Anzeige basierend auf Ihrer Navigation auf unserer Website und den Suchkriterien, die du verwendet hast.
Lage
ca. 25,4 km südwestlich von München-Zentrum
gehobene Wohnlage, sehr ruhig
Wohnen auf Zeit
Kategorie
Haus
Frei
ab sofort
Max. Personenanzahl
7
Mindestmietdauer
6 Monate
Details
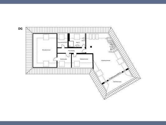
Objektbeschreibung
Weitere Informationen, viele hochauflösende Fotos und ein Video zu diesem Objekt finden Sie unter:
https://www.mrlodge.de/wohnungen/detailansicht/14680/
See offer in English:
https://www.mrlodge.com/search/detailed-view/14680/
Dieses außergewöhnliche Anwesen am begehrten Almeidahügel von Starnberg empfängt...
Ausstattung
Hauswirtschaftsraum mit Waschmaschine und Trockner
Smart-TV (Internetfähig)
Alarm-System
inkl. Bettwäsche und Handtücher
Kaminofen
Weitere Informationen
Sonstiges
Die vollständige Adresse der Immobilie erhalten Sie vom Anbieter.
Pflichtangaben gemäß §87 GEG Gebäudeenergiegesetz:
Der Energieausweis liegt noch nicht vor.
Info und Erläuterung des Mietpreises:
Inkl.: Nebenkosten, Internet, Doppelgarage
Zzgl.: Strom, Heizkosten, Wasser
Rundfunkbeitrag...
Anbieter der Immobilie

Online-ID: 2mhsx5r
Referenznummer: 14680
Finde Angebote wie dieses
Hier geht es zu unserem Impressum, den Allgemeinen Geschäftsbedingungen, den Hinweisen zum Datenschutz und nutzungsbasierter Online-Werbung.