
Lehmann Immo - Wohn(T)räume seit 2015
Martin Lehmann
017 ···
Nr. anzeigenPreise & Kosten
Provision für Käufer
7,14 % vom Kaufpreis inkl. gesetzl. MwSt.
Die Käuferprovision beträgt 7,14?% des beurkundeten Kaufpreises inkl. gesetzlicher MwSt. und ist mit Abschluss des notariellen Kaufvertrags verdient und fällig. Weitere Informationen siehe Provisionshinweis.
Lage
Dieses gepflegte Mehrfamilienhaus befindet sich in einer ruhigen und dennoch sehr zentralen Wohnlage von Bernau bei Berlin. Die Altstadt mit ihren historischen Gebäuden, kleinen Geschäften, Cafés und dem Wochenmarkt ist bequem zu Fuß erreichbar. Ebenso in unmittelbarer Nähe befinden sich Einkaufsmöglichkeiten, Ärzte...
Das Renditeobjekt
Kategorie
Mehrfamilienhaus
Baujahr
1885
Frei ab
vermietet
Energie & Heizung
Warum sehe ich diese Anzeige? – Du siehst diese Anzeige basierend auf Ihrer Navigation auf unserer Website und den Suchkriterien, die du verwendet hast.
Weitere Energiedaten
Energieträger
Gas
Heizungsart
Zentralheizung
Details
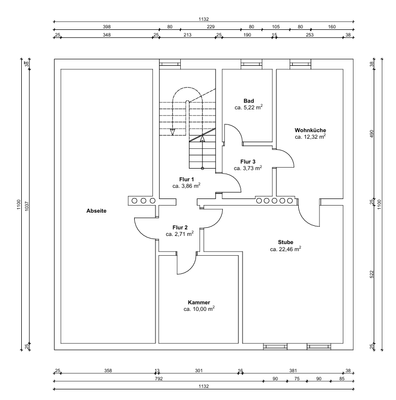
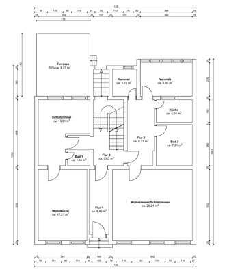
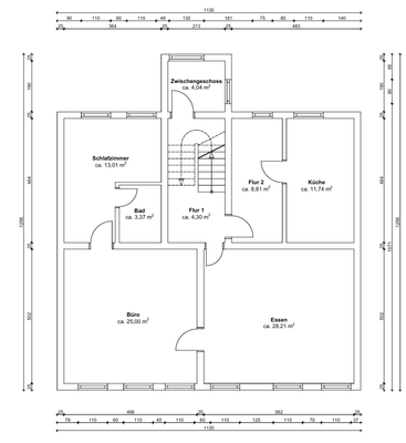
Objektbeschreibung
In zentraler und dennoch ruhiger Lage von Bernau bei Berlin bietet dieses gepflegte Mehrfamilienhaus eine attraktive Gelegenheit für Kapitalanleger mit Weitblick. Das um ca. 1885 errichtete und bis ins Jahr 2024 teilsanierte Gebäude überzeugt durch seine solide Bausubstanz, die gelungene Aufteilung in sechs Wohneinheiten...
Ausstattung
Objektart: Mehrfamilienhaus mit 6 Wohneinheiten
Ort: Bernau bei Berlin (zentrale Wohnlage)
Baujahr: ca. 1885
Modernisierungen: Umfassend teilsaniert bis Anfang 2024 (u.?a. Elektrik, Heizung, Dachgeschoss, Bäder, Böden, Küchen)
Gesamtwohnfläche: ca. 300 m²
Grundstücksgröße: ca. 600...
Preisinformation
Nettorendite Ist in %: 8,01
Nettorendite Soll in %: 10,01
Soll-Mieteinnahmen pro Jahr: 90.000,00 EUR
Ist-Mieteinnahmen pro Jahr: 72.000,00 EUR
Weitere Informationen
Provisionshinweis
7,14 % vom Kaufpreis inkl. gesetzl. MwSt.
Die Käuferprovision beträgt 7,14?% des beurkundeten Kaufpreises inkl. gesetzlicher MwSt. und ist mit Abschluss des notariellen Kaufvertrags verdient und fällig. Bei Gemeinschaftskäufen haften alle Erwerber gesamtschuldnerisch (§ 652...
Anbieter der Immobilie
Online-ID: 2mhuq5v
Referenznummer: 2025-242
Finde Angebote wie dieses
Hier geht es zu unserem Impressum, den Allgemeinen Geschäftsbedingungen, den Hinweisen zum Datenschutz und nutzungsbasierter Online-Werbung.