
Immobilien Mörtl GesmbH
Herr Harald Bittermann
nul ···
Nr. anzeigenPreise & Kosten
Provision für Käufer
3.00 % zzgl. MwSt.
Das Haus
Kategorie
Einfamilienhaus
Baujahr
ca. 1965
Bezug
sofort
Energie & Heizung
Warum sehe ich diese Anzeige? – Du siehst diese Anzeige basierend auf Ihrer Navigation auf unserer Website und den Suchkriterien, die du verwendet hast.
Heizwärmebedarf (HWB)
92,00 kWh/(m²·a)
Gesamtenergieeffizienz (fGEE)
1,32
Weitere Energiedaten
Haustyp
Massivhaus
Energieträger
Öl
Heizungsart
Zentralheizung
Details
Objektbeschreibung
Am Beginn von Weitental bzw. Wachau
(Wohnen, Büros, Fertigung, Lagern, Tierhaltung)
Zum Verkauf steht dieses Wohnhaus mit großem Garten in Leiben.
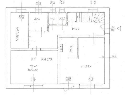
Die Wohnfläche von ca. 125m² teilt sich wie folgt auf:
Vorraum, Küche mit Essbereich, Speis, Badezimmer mit Dusche und Whirlpool-Badewanne, Toilette mit...
Preisinformation
2 Stellplätze
Weitere Informationen
Stichworte
Stellplatz vorhanden, Anzahl der Schlafzimmer: 3, Anzahl der Badezimmer: 1, Anzahl der separaten WCs: 2, Anzahl Balkone: 1, Anzahl Terrassen: 1, Bundesland: Niederösterreich
Anbieter der Immobilie
Immobilien Mörtl GesmbH
Wiener Str. 5, 3040 NEULENGBACH
Online-ID: 2mhvq5t
Referenznummer: 2587/3637
Finde Angebote wie dieses
Günstige Immobilienfinanzierung einfach online berechnen
Persönliches Angebot berechnenWarum sehe ich diese Werbung? – Du siehst diese Werbung basierend auf Deiner Navigation auf unserer Website und der von Dir verwendeten Suchkriterien.
Diese Werbung wird bezahlt von durchblicker
Werbung melden
Hier geht es zu unserem Impressum, den Allgemeinen Geschäftsbedingungen, den Hinweisen zum Datenschutz und nutzungsbasierter Online-Werbung.