

GEOTEAM Immobilien GmbH
Herr Frederic Zoll
Kontaktiere den Anbieter schriftlich, es ist keine Telefonnummer hinterlegt.
Preise & Kosten
Provision für Käufer
provisionsfrei
Lage
Göbrichen gehört zur Gemeinde Neulingen im Enzkreis in Baden-Württemberg.
Göbrichen ist ein idyllischer Ortsteil und überzeugt durch seine ruhige, naturnahe Lage sowie die sehr gute Anbindung an die umliegenden Städte. Mit seinem dörflichen Charakter, einer aktiven Vereinsgemeinschaft und vielfältigen...
Das Haus
Kategorie
Doppelhaushälfte
Baujahr
2026
Bezug
2026
Energie & Heizung
Warum sehe ich diese Anzeige? – Du siehst diese Anzeige basierend auf Ihrer Navigation auf unserer Website und den Suchkriterien, die du verwendet hast.
Weitere Energiedaten
Heizungsart
Luft-/Wasser-Wärmepumpe
Details
Objektbeschreibung
Sichern Sie sich jetzt eines der wenigen letzten Grundstücke in dieser Lage!
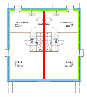
Angeboten wird ein projektierter Bauplatz mit Südausrichtung in einer bestehenden Baulücke mit Blick ins Grüne am Ortsrand von Göbrichen mit ca. 268,27 m² Grundstücksfläche und ca. 20 m² Gemeinschaftsfläche.
Darauf ist eine eingeschossige...
Ausstattung
Die projektierte Immobilie verfügt bereits über eine hochwertige Ausstattung, die im Preis enthalten ist:
+ Massiv gebaut "Stein auf Stein" mit Kalksandsteinen und Wärmedämmverbundsystem
+ Vollunterkellerung mit Außendämmung und Estrich
+ Umweltfreundliche Luftwasserwärmepumpe
+ Fußbodenheizung auf allen...
Weitere Informationen
Sonstiges
Die Bauzeit beträgt ca. 15 Monate ab Baubeginn. Der Baubeginn erfolgt erst nach Verkauf beider Doppelhaushälften. Wir planen den Baubeginn für das 1. Quartal 2026 ein.
Das Angebot ist freibleibend und unverbindlich. Das Angebot umfasst das Grundstück sowie die Erstellung der Doppelhaushälfte. Die...
Anbieter der Immobilie
GEOTEAM Immobilien GmbH
Ahornweg 7, 75331 Engelsbrand

Herr Frederic Zoll
Dein Ansprechpartner
Kontaktiere den Anbieter schriftlich, es ist keine Telefonnummer hinterlegt.
Online-ID: 2mhwl5j
Referenznummer: 154832048#1iw4nT
Finde Angebote wie dieses
Hier geht es zu unserem Impressum, den Allgemeinen Geschäftsbedingungen, den Hinweisen zum Datenschutz und nutzungsbasierter Online-Werbung.