
RE/MAX First REM Immobilienmakler GmbH & Co KG
Frau Eva Wierzbinski
+43 ···
Nr. anzeigenPreise & Kosten
Provision für Käufer
3% des Kaufpreises zzgl. 20% USt.
Das Haus
Kategorie
Villa
Baujahr
1900
Energie & Heizung
Warum sehe ich diese Anzeige? – Du siehst diese Anzeige basierend auf Ihrer Navigation auf unserer Website und den Suchkriterien, die du verwendet hast.
Heizwärmebedarf (HWB)
242,80 kWh/(m²·a)
Gesamtenergieeffizienz (fGEE)
3,03
Details
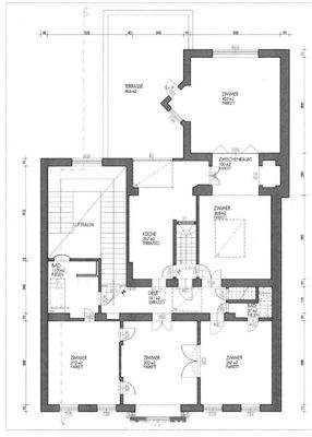
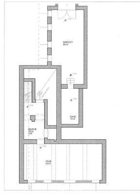
Objektbeschreibung
Hier spürt man das Wien der Jahrhundertwende!
In unmittelbarer Nähe zum Schloss Schönbrunn und vielen Wohnsitzen bekannter Persönlichkeiten der österreichischen Geschichte, außerdem nur wenige Gehminuten vom Hietzinger Zentrum entfernt, befindet sich diese einzigartige Liegenschaft in herrlicher Ruhelage.
In der...
Weitere Informationen
Stichworte
Nutzfläche: 650,00 m², Bundesland: Wien, 2 Etagen
Anbieter der Immobilie
RE/MAX First REM Immobilienmakler GmbH & Co KG
Hietzinger Hauptstrasse 22/D/9, 1130 WIEN
Online-ID: 2mhya5c
Referenznummer: OBGC2025102802194890885e6c9c0b4
Finde Angebote wie dieses
Günstige Immobilienfinanzierung einfach online berechnen
Persönliches Angebot berechnenWarum sehe ich diese Werbung? – Du siehst diese Werbung basierend auf Deiner Navigation auf unserer Website und der von Dir verwendeten Suchkriterien.
Diese Werbung wird bezahlt von durchblicker
Werbung melden
Hier geht es zu unserem Impressum, den Allgemeinen Geschäftsbedingungen, den Hinweisen zum Datenschutz und nutzungsbasierter Online-Werbung.