
Crozilla.com
Simic dom ltd
+38 ···
Nr. anzeigenPreise & Kosten
Provision für Käufer
Bitte beachte, das Angebot kann bei Vertragsabschluss die Zahlung einer Provision beinhalten. Weitere Informationen erhältst Du vom Anbieter.
Die Immobilie
Zu diesem Angebot wurden vom Anbieter keine weiteren Daten hinterlegt. Für weitere Informationen bitte den Anbieter kontaktieren.
Nach Informationen fragenDetails
Objektbeschreibung
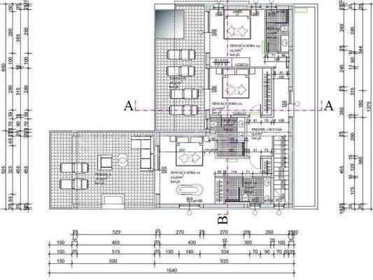
In Prizba auf der Insel Korcula steht ein hervorragendes Baugrundstück zum Verkauf. Das Grundstück hat eine Fläche von 592 m2, und der Verkaufspreis der Immobilie beinhaltet ein Bauprojekt, wie in den beigefügten Visualisierungen gezeigt. Das Gebäude würde aus Erdgeschoss und Obergeschoss bestehen und eine Fläche von 184 m2...
Weitere Informationen
Stichworte
Wohnfläche: 592,00 m², 1 Etagen
Anbieter der Immobilie
Crozilla.com
Nova cesta 60, 10000 ZAGREB
Online-ID: 2mj355k
Referenznummer: 18603220_1
Finde Angebote wie dieses
Hier geht es zu unserem Impressum, den Allgemeinen Geschäftsbedingungen, den Hinweisen zum Datenschutz und nutzungsbasierter Online-Werbung.