Realwert Immobilientreuhand GmbH

Herr Thomas Lainer

ADNET | SOLO AM GRÜNLAND

€ 1.725.000
Kaufpreis
225 m²
Wohnfläche ca.
7
Zimmer
1 900 m²
Grundstücksfl. ca.
Finanzierung berechnen mit durchblicker

Der Anbieter dieses Objekts hat gegenüber der AVIV Germany GmbH als Betreiber dieses Online-Marktplatzes erklärt, nicht als Unternehmer im Sinne des § 1 KSchG zu handeln. Die im Verbraucherschutzrecht der Union verankerten Verbraucherrechte (insbesondere Informationspflichten und Rücktritts- bzw. Widerrufsrechte) finden auf den Vertrag zwischen dem Anbieter des Objekts und Ihnen (dem Interessenten) keine Anwendung.

Gewerblicher Anbieter

Der Anbieter dieses Objekts hat gegenüber der AVIV Germany GmbH als Betreiber dieses Online-Marktplatzes erklärt, als Unternehmer im Sinne des § 1 KSchG zu handeln.

AdresseStraße nicht freigegeben
5421 Adnet 
Auf Karte ansehen

Preise & Kosten

Kaufpreis € 1.725.000 Betriebskosten € 201,30 Heizkosten € 250 Preis/m² € 7.666,67

Provision für Käufer

3% des Kaufpreises zzgl. 20% USt.

Lage

Adnet liegt im Tennengau, südlich der Stadt Salzburg, eingebettet zwischen Osterhorngruppe und Tennengebirge. Der Ort ist seit Jahrhunderten für den Adneter Marmor bekannt; Steinbrüche und traditionelle Baukultur prägen bis heute das Erscheinungsbild. Für den täglichen Bedarf ist gesorgt: Kindergarten, Volksschule...

Mehr anzeigen

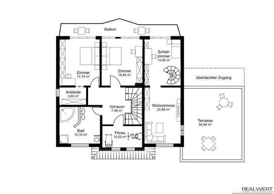
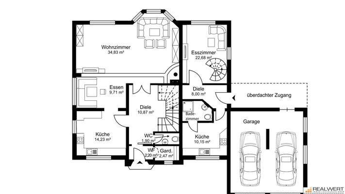
Das Haus

Kategorie

Mehrfamilienhaus

Baujahr

1990

Bezug

Q1/2026

  • Zustand: gepflegt, Neubau
  • Terrasse, Balkon
  • 1 Stellplatz: Garage
  • Bad mit Fenster und Wanne, Gäste-WC
  • Einbauküche
  • Böden: Parkett, Steinboden

Energie & Heizung

Heizwärmebedarf (HWB)

C

99,00 kWh/(m²·a)

Gesamtenergieeffizienz (fGEE)

C

1,26

Weitere Energiedaten

Haustyp

Massivhaus

Heizungsart

offener Kamin, Zentralheizung

Details

Objektbeschreibung

ADNET | SOLO AM GRÜNLAND

GROSSZÜGIGES EINFAMILIENHAUS MIT EINLIEGERTRAKT

 

Allgemein

Zwischen Weite und Ruhe präsentiert sich dieses großzügige Einfamilienhaus in einer außergewöhnlich harmonischen Lage am Ortsrand von Adnet. Die Kombination aus klassischer Architektur, massiver Bauweise und...

Mehr anzeigen

Preisinformation

1 Garagenstellplatz

Weitere Informationen

Stichworte
Energieversorgung mit alternativen Energien, Garage vorhanden, Süd-Balkon/Terrasse, Nutzfläche: 332,00 m², Anzahl der Badezimmer: 2, Anzahl Balkone: 1, Anzahl Terrassen: 2, Kellerfläche: 107,00 m², Bundesland: Salzburg, 3 Etagen

Anbieter der Immobilie

Partner

Realwert Immobilientreuhand GmbH

im Durchschnitt  5,00  Sterne
(bei 1 Bewertungen)

Dr. Adolf Altmann Strasse 17, 5020 SALZBURG

user

Herr Thomas Lainer

Dein Ansprechpartner

Anbieter-Profil Anbieter-Impressum

Online-ID: 2mj3c53

Referenznummer: OBGC20250806174556117433aa973c0

Finde Angebote wie dieses

imageimageimage

Günstige Immobilienfinanzierung einfach online berechnen

Persönliches Angebot berechnen

Hier geht es zu unserem Impressum, den Allgemeinen Geschäftsbedingungen, den Hinweisen zum Datenschutz und nutzungsbasierter Online-Werbung.