
Salli's Immobiliengesellschaft mbH
Herr Burak Salli
+49 ···
Nr. anzeigenPreise & Kosten
Provision für Käufer
provisionsfrei
Lage
Die Immobilie befindet sich in bevorzugter Wohnlage von Asendorf am Nordrand der Lüneburger Heide. Die Umgebung ist geprägt von weitläufigen Wald- und Heidelandschaften sowie großzügigen Grundstücken mit geringer Bebauungsdichte. Die Lage bietet ein hohes Maß an Ruhe, Privatsphäre und naturnahem Wohnen.
Asendorf selbst...
Das Haus
Kategorie
Villa
Baujahr
1965
Bezug
sofort
Derzeitige Nutzung
frei
Energie & Heizung
Warum sehe ich diese Anzeige? – Du siehst diese Anzeige basierend auf Ihrer Navigation auf unserer Website und den Suchkriterien, die du verwendet hast.
Gebäudetyp
Wohngebäude
Weitere Energiedaten
Energieträger
Blockheizkraftwerk
Heizungsart
Fußbodenheizung, offener Kamin
Details
Objektbeschreibung
Diese außergewöhnliche Villa befindet sich in ruhiger, naturnaher Lage von Asendorf am Nordrand der Lüneburger Heide und bietet ein Höchstmaß an Privatsphäre, Großzügigkeit und diskretem Luxus. Das Anwesen liegt auf einem ca. 7.473 m² großen, parkähnlich angelegten Grundstück mit altem Baumbestand und grenzt unmittelbar an...
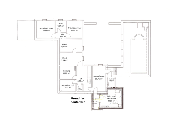
Ausstattung
• Großzügige Wohnfläche auf einer Ebene im Erdgeschoss
• Hochwertig ausgebautes, beheiztes Souterrain
• Mehrere flexibel nutzbare Gäste- und Arbeitszimmer
• Exklusiver Wellnessbereich mit Sauna, Ruheraum und Indoor-Pool
• Beheizter, ganzjährig nutzbarer Indoor-Pool mit großzügiger Wasserfläche
• Großformatige...
Weitere Informationen
Der Verkauf umfasst ein ca. 7.473 m² großes Flurstück, auf dem sich die Villa befindet. Die großzügige Grundstücksfläche bietet neben dem bestehenden Anwesen zusätzliches bauliches Entwicklungspotenzial.
Für das angebotene Grundstück liegt ein positiver Bauvorbescheid vor, der eine weitere bauliche Nutzung...
Anbieter der Immobilie
Salli's Immobiliengesellschaft mbH
Neuer Wall 8, 20354 Hamburg-Mitte
Online-ID: 2mj3v5v
Finde Angebote wie dieses
Hier geht es zu unserem Impressum, den Allgemeinen Geschäftsbedingungen, den Hinweisen zum Datenschutz und nutzungsbasierter Online-Werbung.