
Immobilienbüro Kühn GmbH Co. KG, Komplimentär: Immobilienbüero Kühn Verwaltungs GmbH
Herr Wolfgang Kühn
+49 ···
Nr. anzeigenPreise & Kosten
Provision für Käufer
2.975,- EUR inkl. 19 % MwSt.
Die Provision beträgt pauschal 2.975,- EUR inkl. 19% MwSt.
Sie ist verdient mit Abschluss des notariellen Kaufvertrages und spätestens mit dem Kaufpreis zur Zahlung fällig. Weitere Informationen siehe Provisionshi
Lage
Die Große Kreisstadt Plauen mit ca. 66.000 Einwohnern ist ein Oberzentrum im Südwesten des Freistaates Sachsen und die Kreisstadt des Vogtlandkreises. Zugleich ist sie die größte Stadt des sächsischen Vogtlandes und fünftgrößte Stadt im Freistaat. Sie liegt verkehrsgünstig an der Nahtstelle zu Bayern, Böhmen und Thüringen, im...
Die Wohnung
Wohnungslage
1. Geschoss
Derzeitige Nutzung
vermietet
Wohnanlage
Energie & Heizung
Warum sehe ich diese Anzeige? – Du siehst diese Anzeige basierend auf Ihrer Navigation auf unserer Website und den Suchkriterien, die du verwendet hast.
Energieausweistyp
Verbrauchsausweis
Gebäudetyp
Wohngebäude
Baujahr laut Energieausweis
1994
Wesentliche Energieträger
Gas
Gültigkeit
14.01.2019 bis 13.01.2029
Effizienzklasse
B
Endenergieverbrauch
59,00 kWh/(m²·a) - Warmwasser enthalten
Weitere Energiedaten
Energieträger
Gas
Heizungsart
Zentralheizung
Details
Objektbeschreibung
Das Wohn- und Geschäftshaus in der Körnerstraße 2 wurde lt. Energieausweis 1994 erbaut und befindet sich unweit des Plauener Zentrums.
Das Objekt ist voll unterkellert und mit einem Aufzug ausgestattet.
Unter dem Kellergeschoss befindet sich eine Tiefgarage.
Im Kellergeschoss erfolgte eine 2-fach...
Ausstattung
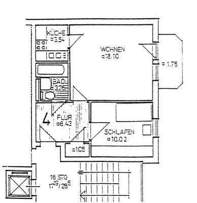
Die 2-Raum Wohnung im 1. Obergeschoss der Immobilie ist lt. Planung ca. 44,65 m² groß und teilt sich wie folgt auf:
- Flur: 6,43 m²,
- Abstellraum: 1,05 m²,
- Schlafzimmer: 10,02 m²,
- Küche: 3,54 m²,
- Wohnzimmer: 18,10 m²
- Bad mit Wanne: 3,76 m²
- Balkon: 1,75 m²
Alle Angaben sind Planungs-...
Preisinformation
1 Tiefgaragenstellplatz
Ist-Mieteinnahmen pro Jahr: 2.916,00 EUR
Weitere Informationen
Provisionshinweis
2.975,- EUR inkl. 19 % MwSt.
Die Provision beträgt pauschal 2.975,- EUR inkl. 19% MwSt.
Sie ist verdient mit Abschluss des notariellen Kaufvertrages und spätestens mit dem Kaufpreis zur Zahlung fällig. Der Makler hat mit dem Verkäufer einen provisionspflichtigen Vertrag in gleicher Höhe...
Online-ID: 2mj4658
Referenznummer: PLKö2W4
Finde Angebote wie dieses
Hier geht es zu unserem Impressum, den Allgemeinen Geschäftsbedingungen, den Hinweisen zum Datenschutz und nutzungsbasierter Online-Werbung.