
Living Blue Mallorca
971 ···
Nr. anzeigenPreise & Kosten
Provision für Käufer
Bitte beachte, das Angebot kann bei Vertragsabschluss die Zahlung einer Provision beinhalten. Weitere Informationen erhältst Du vom Anbieter.
Die Immobilie
Zu diesem Angebot wurden vom Anbieter keine weiteren Daten hinterlegt. Für weitere Informationen bitte den Anbieter kontaktieren.
Nach Informationen fragenDetails
Objektbeschreibung
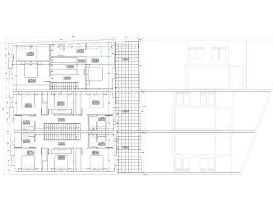
In Campos, im sonnigen Südosten Mallorcas, bietet ein Grundstück mit genehmigtem Projekt die Möglichkeit, drei moderne Reihenhäuser zu realisieren. Wer Reihenhäuser in Campos kaufen möchte, erhält hier ein Bauvorhaben, das Privatsphäre, komfortable Ausstattung und großzügige Außenbereiche vereint.
Jedes Haus wird über...
Weitere Informationen
Stichworte
Bundesland: Mallorca
Anbieter der Immobilie
Online-ID: 2mj4j5z
Referenznummer: 7052
Finde Angebote wie dieses
Hier geht es zu unserem Impressum, den Allgemeinen Geschäftsbedingungen, den Hinweisen zum Datenschutz und nutzungsbasierter Online-Werbung.