

Stepec Immobilier
Frau Taise Stepec
003 ···
Nr. anzeigenPreise & Kosten
Provision für Käufer
24 500€ inkl MwSt
Lage
Das Wohnbauprojekt befindet sich in Spicheren, einer attraktiven und ruhigen Gemeinde im Département Moselle, nur wenige Minuten von der deutsch-französischen Grenze entfernt. Diese Lage bietet eine ideale Kombination aus Natur, Ruhe und hervorragender Anbindung an das städtische Leben.
Grenznähe zu Deutschland – nur...
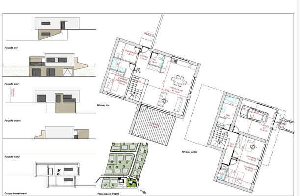
Das Haus
Details
Objektbeschreibung
Individuell geplante Häuser – Wohnbauprojekt in Spicheren
Entdecken Sie in einem neuen Wohnbauprojekt in Spicheren moderne, individuell geplante Häuser mit zeitgemäßem Design und hochwertiger Ausstattung.
Ein einzigartiges Projekt, das Ästhetik, Komfort und Energieeffizienz vereint.
Erschlossene...
Weitere Informationen
Besichtigungstermine
Für weitere Informationen zu diesem Wohnbauprojekt oder bei Fragen zur individuellen Hausplanung stehen wir Ihnen gerne zur Verfügung.
Vereinbaren Sie jetzt einen persönlichen Beratungstermin, um unsere Modelle kennenzulernen und gemeinsam Ihr maßgeschneidertes Bauprojekt zu besprechen.
Unser...
Anbieter der Immobilie
Stepec Immobilier
2A Rue Nationale, 57350 STIRING WENDEL

Online-ID: 2mj5g57
Referenznummer: 1102
Finde Angebote wie dieses
Hier geht es zu unserem Impressum, den Allgemeinen Geschäftsbedingungen, den Hinweisen zum Datenschutz und nutzungsbasierter Online-Werbung.