

Immobilienwelt Prill
Frau Pia Prill
015 ···
Nr. anzeigenPreise & Kosten
Das Haus
Kategorie
Stadthaus
Baujahr
1660
Bezug
sofort
Energie & Heizung
Warum sehe ich diese Anzeige? – Du siehst diese Anzeige basierend auf Ihrer Navigation auf unserer Website und den Suchkriterien, die du verwendet hast.
Energieausweis: für diesen Gebäudetyp nicht notwendig
Weitere Energiedaten
Energieträger
Holz
Heizungsart
Zentralheizung
Details
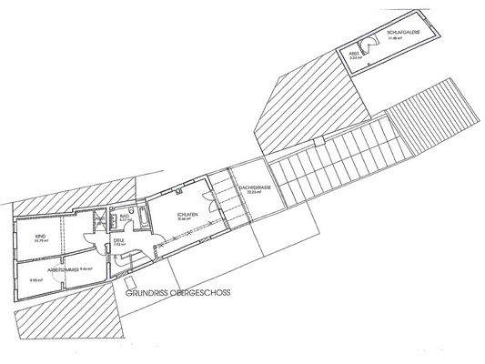
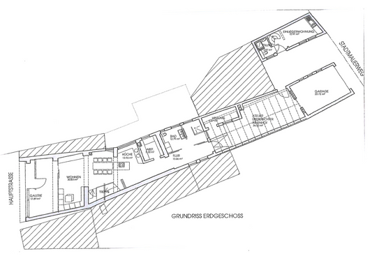
Objektbeschreibung
? Ein besonderes Objekt
? Baujahr 1660 – unter Ensemble-Denkmalschutz
? Viertältestes Haus in Zeil am Main, hervorragend erhalten
? Grundstück: 257 m² | Wohnfläche: ca. 325 m²
? Mit Einliegerwohnung (33 m², 2 Etagen, separater Eingang & Adresse)
? Nutzung flexibel: Wohnen + Gewerbe...
Anbieter der Immobilie

Online-ID: 2mj6e55
Finde Angebote wie dieses
Hier geht es zu unserem Impressum, den Allgemeinen Geschäftsbedingungen, den Hinweisen zum Datenschutz und nutzungsbasierter Online-Werbung.