

ISH Immobilien OHG
Herr Michael Tiedemann
041 ···
Nr. anzeigenPreise & Kosten
Provision für Käufer
3.57 % inkl. MwSt.
Lage
Die Hansestadt Stade liegt mit 50.000 Einwohnern auf halbem Weg zwischen Hamburg und der Nordsee. Stade hat eine über 1000-jährige Geschichte, die sich in der historischen Altstadt mit seinen wunderschönen Fachwerkhäusern widerspiegelt. Stade ist ein wirtschaftliches und kulturelles Behörden- und Dienstleistungszentrum im...
Das Haus
Kategorie
Reihenendhaus
Baujahr
1955
Bezug
sofort
Energie & Heizung
Warum sehe ich diese Anzeige? – Du siehst diese Anzeige basierend auf Ihrer Navigation auf unserer Website und den Suchkriterien, die du verwendet hast.
Energieausweistyp
Bedarfsausweis
Gebäudetyp
Wohngebäude
Baujahr laut Energieausweis
1955
Wesentliche Energieträger
Gas
Gültigkeit
04.04.2025 bis 03.04.2035
Effizienzklasse
G
Endenergiebedarf
221,10 kWh/(m²·a)
Weitere Energiedaten
Energieträger
Gas
Details
Objektbeschreibung
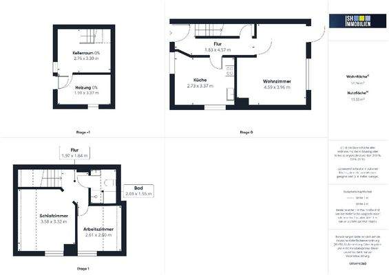
Herzlich Willkommen in Ihrem Zuhause! Dieses modernisierte Reihenendhaus, erbaut im Jahr 1955, bietet Ihnen eine Wohnfläche von ca. 50 m² und befindet sich auf einem Grundstück von ca. 179 m².
Das Herzstück des Hauses ist das Wohnzimmer mit direktem Zugang zur Terrasse und in den Garten. Des Weiteren befinden sich eine...
Ausstattung
- Duschbad
- 2 Kfz-Stellplätze vor dem Haus
- Gasheizung aus 2025
- Terrasse
Preisinformation
2 Stellplätze
Weitere Informationen
Sonstiges
Hinweis: Wir weisen höflich darauf hin, dass die hier gemachten Angaben ausschließlich auf den uns vom Eigentümer übermittelten Unterlagen und Daten basieren. Für die Richtigkeit und Vollständigkeit können wir keine Haftung übernehmen. Das Angebot ist freibleibend. Forderungen und Irrtümer vorbehalten.
Wenn...
Anbieter der Immobilie

Online-ID: 2mj785b
Referenznummer: 4943
Finde Angebote wie dieses
Hier geht es zu unserem Impressum, den Allgemeinen Geschäftsbedingungen, den Hinweisen zum Datenschutz und nutzungsbasierter Online-Werbung.