
Sperr & Zellner Immobilien GmbH
Frau Sandra Fisch
004 ···
Nr. anzeigenPreise & Kosten
Provision für Mieter
provisionsfrei
Warum sehe ich diese Anzeige? – Du siehst diese Anzeige basierend auf Ihrer Navigation auf unserer Website und den Suchkriterien, die du verwendet hast.
Lage
Das Büro- und Lagergebäude befindet sich in der charmanten Gemeinde Ismaning, im nördlichen Umfeld von München. Diese florierende Region zeichnet sich durch ihre hervorragende Anbindung sowie die ideale Mischung aus urbanem und ländlichem Leben aus. Ismaning bietet eine inspirierende Kulisse für Unternehmen und ist bekannt...
Büro-/Praxisfläche
Kategorie
Bürofläche
Baujahr
1991
Bezug
sofort
Energie & Heizung
Warum sehe ich diese Anzeige? – Du siehst diese Anzeige basierend auf Ihrer Navigation auf unserer Website und den Suchkriterien, die du verwendet hast.
Wärme
Strom
Energieausweistyp
Verbrauchsausweis
Gebäudetyp
Nicht-Wohngebäude
Baujahr laut Energieausweis
1991
Wesentliche Energieträger
FERN
Gültigkeit
bis 29.04.2035
Endenergieverbrauch (Wärme)
63,80 kWh/(m²·a)
Endenergieverbrauch (Strom)
35,90 kWh/(m²·a)
Details
Ausstattung
- keine Provision für den Mieter
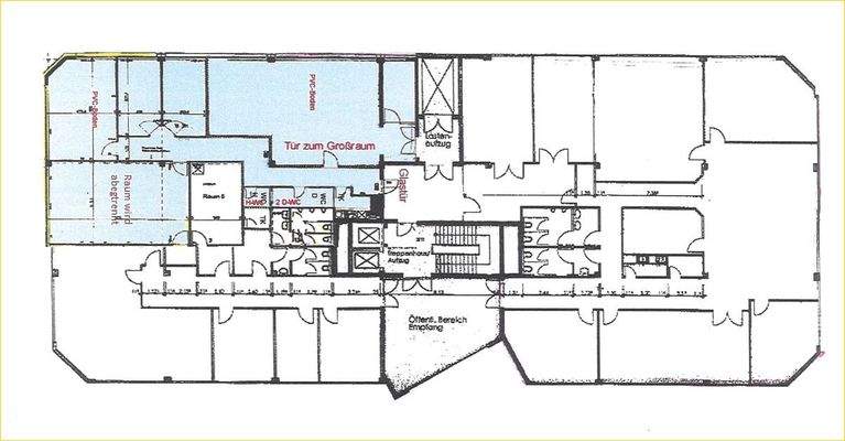
- 2. Obergeschoss
- Personen- und Lastenaufzug vorhanden
- 5 Büroräume (3 davon teilbar mit Trockenbau)
- Serverraum/Lagerraum
- Teeküche mit kleiner Einbauküche vorhanden
- insgesamt 3 WC´s
- großer Flur
- Vorraum im Eingangsbereich vorhanden
- aktuelle...
Weitere Informationen
Sonstiges
Gerne übersenden wir Ihnen ein ausführliches Exposé mit zahlreichen Fotos und Außenansichten - bitte teilen Sie uns hierzu noch Ihren Namen, Ihre Anschrift und Ihre Festnetz-/Mobilnummer mit - vielen Dank!
Sperr & Zellner Immobilien GmbH
Büro Dorfen:...
Anbieter der Immobilie
Sperr & Zellner Immobilien GmbH
Haager Strasse 16 , 84405 Dorfen
Online-ID: 2mj7u5d
Referenznummer: M3755
Finde Angebote wie dieses
Hier geht es zu unserem Impressum, den Allgemeinen Geschäftsbedingungen, den Hinweisen zum Datenschutz und nutzungsbasierter Online-Werbung.