team19 Immobilien GmbH

Herr Christoph Kolar

Frisch renoviert! Charmante Wohnung in Ruhelage nahe Elterleinplatz, Lidlpark und Hernalser Hauptstraße! Küche und Möbel inklusive - JETZT ANFRAGEN

€ 399.000,17
Kaufpreis
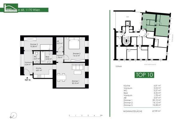
67,94 m²
Wohnfläche ca.
3
Zimmer
Finanzierung berechnen mit durchblicker

Der Anbieter dieses Objekts hat gegenüber der AVIV Germany GmbH als Betreiber dieses Online-Marktplatzes erklärt, nicht als Unternehmer im Sinne des § 1 KSchG zu handeln. Die im Verbraucherschutzrecht der Union verankerten Verbraucherrechte (insbesondere Informationspflichten und Rücktritts- bzw. Widerrufsrechte) finden auf den Vertrag zwischen dem Anbieter des Objekts und Ihnen (dem Interessenten) keine Anwendung.

Gewerblicher Anbieter

Der Anbieter dieses Objekts hat gegenüber der AVIV Germany GmbH als Betreiber dieses Online-Marktplatzes erklärt, als Unternehmer im Sinne des § 1 KSchG zu handeln.

AdresseStraße nicht freigegeben
1170 Wien 
(Hernals)
Auf Karte ansehen

Preise & Kosten

Kaufpreis € 399.000,17

Provision für Käufer

Bitte beachte, das Angebot kann bei Vertragsabschluss die Zahlung einer Provision beinhalten. Weitere Informationen erhältst Du vom Anbieter.

Lage

Hernalser Hauptstrasse, Elterleinplatz, Wattgasse, Alser Straße, Hernals

Die Wohnung

Wohnungslage

2. Geschoss

Bezug

nach Vereinbarung

  • Bad mit Dusche
  • Einbauküche
  • Böden: Fliesenboden, Parkett
  • Ausstattung: möbliert, neuwertig
  • Weitere Räume: Abstellraum

Wohnanlage

  • Zustand: Altbau (bis 1945)
  • Personenaufzug

Energie & Heizung

Heizwärmebedarf (HWB)

B

42,60 kWh/(m²·a)

Gesamtenergieeffizienz (fGEE)

A

0,73

Weitere Energiedaten

Energieträger

Gas

Heizungsart

Fußbodenheizung

Details

Objektbeschreibung

Willkommen zu einer einzigartigen Wohnung im begehrten Stadtteil Hernals. Gelegen im erst kürzlich umfassend generalsanierten Eck-Altbau, vereint dieses Wohnprojekt den Charme historischer Architektur mit modernem Komfort und befindet sich in einer ruhigen Seitengasse der Hernals...

Mehr anzeigen

Weitere Informationen

Stichworte
Nutzfläche: 67,94 m², Gesamtfläche: 67,99 m², Anzahl der Badezimmer: 1, Anzahl der separaten WCs: 1, Bundesland: Wien, modernisiert: 2024

Anbieter der Immobilie

Partner

team19 Immobilien GmbH

im Durchschnitt  4,20  Sterne
(bei 2 Bewertungen)

Handelskai 94-96/44. Stock, 1200 BRIGITTENAU

user

Herr Christoph Kolar

Dein Ansprechpartner

Anbieter-Website Anbieter-Profil Anbieter-Impressum

Online-ID: 2mj8d5j

Referenznummer: OBGC2025113018360580838e92ee240

Finde Angebote wie dieses

imageimageimage

Günstige Immobilienfinanzierung einfach online berechnen

Persönliches Angebot berechnen

Hier geht es zu unserem Impressum, den Allgemeinen Geschäftsbedingungen, den Hinweisen zum Datenschutz und nutzungsbasierter Online-Werbung.