
Ilgen GmbH Servicebüro
Herr Josef Ilgen
026 ···
Nr. anzeigenPreise & Kosten
Provision für Käufer
Zzgl. 3,57% Käufercourtage inkl. MwSt.
Abschreibung/Anlage
als Kapitalanlage geeignet
Lage
Bad Bertrich liegt eingebettet zwischen der Vulkaneifel und der Mosel im idyllischen Üßbachtal. Der kleine Kurort gehört dem Landkreis Cochem-Zell und besticht durch seine reizvolle Lage inmitten einer abwechslungsreichen Natur. Neben dem bekannten Thermalbad lädt vor allem der Landschaftstherapeutische Park Römerkessel mit...
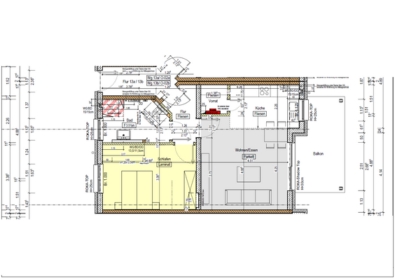
Die Wohnung
Wohnungslage
1. Geschoss
Derzeitige Nutzung
vermietet
Wohnanlage
Energie & Heizung
Warum sehe ich diese Anzeige? – Du siehst diese Anzeige basierend auf Ihrer Navigation auf unserer Website und den Suchkriterien, die du verwendet hast.
Energieausweistyp
Verbrauchsausweis
Gebäudetyp
Wohngebäude
Baujahr laut Energieausweis
2009
Wesentliche Energieträger
Strom
Gültigkeit
07.08.2023 bis 07.08.2033
Endenergieverbrauch
38,40 kWh/(m²·a) - Warmwasser enthalten
Weitere Energiedaten
Heizungsart
Fußbodenheizung, Luft-/Wasser-Wärmepumpe
Details
Objektbeschreibung
Objektbeschreibung
Die Wohnresidenz „Maiweide“ wurde 2010 in moderner Bauweise errichtet.
Bei der Planung und Ausführung wurden hohe Ansprüche an die Barrierefreiheit des Gebäudes gestellt. Alle Wohnungen sind über eine Liftanlage zu erreichen.
Jede Wohneinheit verfügt über großzügige Balkone/Terrassen sowie...
Weitere Informationen
Unser Servicebüro
Wir sind seit über 30 Jahren Makler im Finanz-/ Finanzierungs-/ und Immobilienbereich. Wir arbeiten mit vielen regionalen und überregionalen Banken zusammen, sodass wir Ihnen gerne bei einem individuellen Finanzierungskonzept behilflich sein können.
Wir können keinerlei Gewährleistung für die...
Dokumente
Anbieter der Immobilie
Ilgen GmbH Servicebüro
Kurfürstenstr. 56, 56864 Bad Bertrich
Online-ID: 2mj9h5q
Finde Angebote wie dieses
Hier geht es zu unserem Impressum, den Allgemeinen Geschäftsbedingungen, den Hinweisen zum Datenschutz und nutzungsbasierter Online-Werbung.