
ohne-makler.net - Immobilien selbst vermarkten
Privat von C. Dohle
Kontaktiere den Anbieter schriftlich, es ist keine Telefonnummer hinterlegt.
Preise & Kosten
Provision für Käufer
provisionsfrei
Lage
Die Wohnung befindet sich in Erlangen/Stadtrandsiedlung in einer verkehrsberuhigten Straße mit einem direkten Zugang über den Quartiersplatz zum N. E. W. Einkaufszentrum Neumühle. In der direkten Umgebung sind daher alle Dinge des täglichen Bedarfs zu Fuß erreichbar: Supermärkte, Bäcker, Ärzte, Physiotherapie, Reinigung...
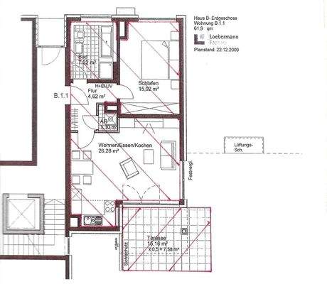
Die Wohnung
Wohnungslage
Erdgeschoss
Bezug
01.02.2026
Wohnanlage
Energie & Heizung
Warum sehe ich diese Anzeige? – Du siehst diese Anzeige basierend auf Ihrer Navigation auf unserer Website und den Suchkriterien, die du verwendet hast.
Energieausweistyp
Bedarfsausweis
Gebäudetyp
Wohngebäude
Endenergiebedarf
66,00 kWh/(m²·a)
Weitere Energiedaten
Energieträger
Fernwärme
Heizungsart
Fußbodenheizung
Details
Objektbeschreibung
Diese Eigentumswohnung mit Terrasse und Garten bietet auf 62 m² angenehmen Komfort in einem sehr guten und ruhigen Umfeld. Sie ist Teil einer gepflegten Anlage, bestehend aus 3 Häusern mit jeweils 8 Wohnungen in 2 Stockwerken. Die Fassade wurde 2025 frisch saniert. Die Wohnung liegt im Erdgeschoß des zweiten Hauses, ist...
Ausstattung
Terrasse, Garten, Keller, Fahrstuhl, Vollbad, Duschbad, Einbauküche, Parkett, Fliesen
Bemerkungen:
Barrierefreier Zugang und Aufzug zum Untergeschoß über Tiefgarage mit elektrischer Schleusentüre
Treppenhaus und Hausflure mit Granit Natursteinböden
Klingel mit Videosprechanlage
Bodentiefe Fenster in Wohn-...
Preisinformation
1 Tiefgaragenstellplatz, Kaufpreis: 20.000,00 EUR
Weitere Informationen
Sonstiges
Heizungsart: Fußbodenheizung
Energieträger: Fernwärme
Makleranfragen nicht erwünscht. Nach § 7 UWG sind unaufgeforderte Kontaktaufnahmen durch Makler ohne ausdrückliche Einwilligung des Empfängers verboten!
ohne-makler (OM) ist weder Anbieter noch Vermittler der Immobilie. OM betreibt eine...
Dokumente
Anbieter der Immobilie
ohne-makler.net - Immobilien selbst vermarkten
Humboldtstr. 25 A, 21509 Glinde
Privat von C. Dohle
Dein Ansprechpartner
Kontaktiere den Anbieter schriftlich, es ist keine Telefonnummer hinterlegt.
Online-ID: 2mja45q
Referenznummer: 412984
Finde Angebote wie dieses
Hier geht es zu unserem Impressum, den Allgemeinen Geschäftsbedingungen, den Hinweisen zum Datenschutz und nutzungsbasierter Online-Werbung.