
Heim und Grund Verwaltungsgesellschaft mbH
Frau Jenny Götze
036 ···
Nr. anzeigenPreise & Kosten
zzgl. Nebenkosten
Kaution
2020
Provision für Mieter
provisionsfrei
Warum sehe ich diese Anzeige? – Du siehst diese Anzeige basierend auf Ihrer Navigation auf unserer Website und den Suchkriterien, die du verwendet hast.
Lage
Die Leipziger Straße liegt mitten in der Innenstadt und ist durch eine sehr gute Verkehrsanbindung gekennzeichnet. Die Straßenbahn hält wieder Meter vor dem Objekt.
Büro-/Praxisfläche
Kategorie
Praxisfläche
Baujahr
1890
Bezug
sofort
Mindestmietdauer
12 Monate
Energie & Heizung
Warum sehe ich diese Anzeige? – Du siehst diese Anzeige basierend auf Ihrer Navigation auf unserer Website und den Suchkriterien, die du verwendet hast.
Energieausweistyp
Verbrauchsausweis
Gebäudetyp
Wohngebäude
Baujahr laut Energieausweis
1890
Wesentliche Energieträger
Gas
Gültigkeit
10.03.2024 bis 10.03.2034
Endenergieverbrauch
120,30 kWh/(m²·a)
Weitere Energiedaten
Energieträger
Gas
Heizungsart
Zentralheizung
Details
Objektbeschreibung
Das zentral gelegene Mehrfamilienhaus in der Leipziger Straße ist voll saniert. Das Objekt verfügt über 10 Mietparteien und einen angrenzenden Hof. Im Erdgeschoss befindet sich ein Versicherungsbüro.
Ausstattung
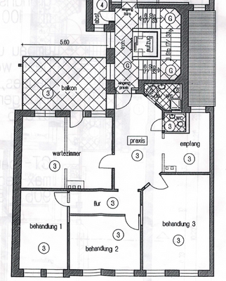
Die Gewerbeeinheit befindet sich im 1.Obergeschoss und ist über einen Aufzug im Haus barrierearm zu erreichen.
Die drei straßenseitig lichtdurchfluteten Räume könnten beispielsweise als Behandlungs- und/oder Wartezimmer genutzt werden.
Über den Empfangsbereich erreichen Sie den Südbalkon sowie einen weiteren Raum, der...
Weitere Informationen
Sonstiges
Info: Anzahl Etagen: 4
Gern vereinbaren wir mit Ihnen einen persönlichen Besichtigungstermin. Melden Sie sich einfach bei uns. Wir freuen uns auf Sie!
Anbieter der Immobilie
Online-ID: 2mjae52
Finde Angebote wie dieses
Hier geht es zu unserem Impressum, den Allgemeinen Geschäftsbedingungen, den Hinweisen zum Datenschutz und nutzungsbasierter Online-Werbung.