
IM Lifestyle Properties GmbH
Herr Christian Kiedl
+43 ···
Nr. anzeigenPreise & Kosten
Provision für Käufer
3% des Kaufpreises zzgl. 20% USt.
Die Wohnung
Kategorie
Maisonette
Wohnanlage
Energie & Heizung
Warum sehe ich diese Anzeige? – Du siehst diese Anzeige basierend auf Ihrer Navigation auf unserer Website und den Suchkriterien, die du verwendet hast.
Heizwärmebedarf (HWB)
98,00 kWh/(m²·a)
Gesamtenergieeffizienz (fGEE)
1,67
Weitere Energiedaten
Energieträger
Gas, Holz
Heizungsart
Fußbodenheizung, offener Kamin, Zentralheizung
Details
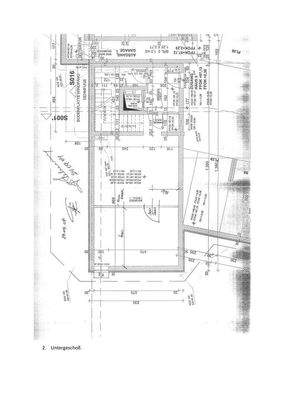
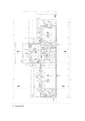
Objektbeschreibung
_Im Falle der Notwendigkeit einer Fremdfinanzierung Ihrer Wunschimmobilie ermittelt unser Wohnbau-Finanzierungsexperte gerne die optimale Finanzierungslösung und findet das passende Zins- und Konditionsangebot für Sie. Er vergleicht die aktuellen Angebote aller relevanten Banken und Bausparkassen. Der Angebotsvergleich kann...
Preisinformation
3 Stellplätze
1 Garagenstellplatz
Weitere Informationen
Stichworte
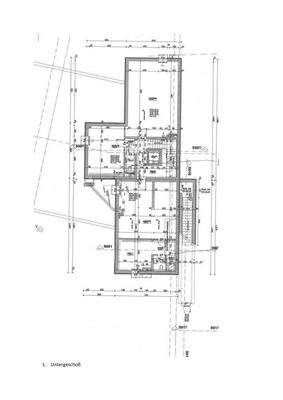
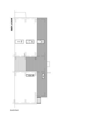
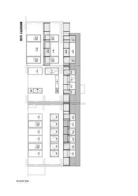
Garage vorhanden, Tiefgarage vorhanden, Ost-Süd-Süd-Ost-Süd-West-West-Balkon/Terrasse, Fahrradraum, Nutzfläche: 645,07 m², Anzahl der Badezimmer: 4, Anzahl der separaten WCs: 5, Anzahl Balkone: 1, Anzahl Terrassen: 5, Balkon-Terrassen-Fläche: 123,83 m², Kellerfläche: 226,19 m², Bundesland: Wien, 3...
Anbieter der Immobilie
IM Lifestyle Properties GmbH
Stock-im-Eisen-Platz 3/26, 1010 WIEN
Online-ID: 2mjce5d
Referenznummer: OBGC202311141939593963b2af39c5c
Finde Angebote wie dieses
Günstige Immobilienfinanzierung einfach online berechnen
Persönliches Angebot berechnenWarum sehe ich diese Werbung? – Du siehst diese Werbung basierend auf Deiner Navigation auf unserer Website und der von Dir verwendeten Suchkriterien.
Diese Werbung wird bezahlt von durchblicker
Werbung melden
Hier geht es zu unserem Impressum, den Allgemeinen Geschäftsbedingungen, den Hinweisen zum Datenschutz und nutzungsbasierter Online-Werbung.