
Immobilien Hoffmann
Frau Iris Hoffmann-Teifel
043 ···
Nr. anzeigenPreise & Kosten
Provision für Käufer
provisionsfrei
Lage
In ruhiger Sackgassenlage von Kasseedorf befinden sich diese beiden Gebäude.
Nach Neustadt in Holstein sind es ca. 16 km, nach Eutin beträgt die Entfernung 9 km.
Im direkt benachbarten Schönwalde findet man alle Eingekaufsmöglichkeiten.
Das Renditeobjekt
Kategorie
Mehrfamilienhaus
Baujahr
1958
Bezug
sofort
Energie & Heizung
Warum sehe ich diese Anzeige? – Du siehst diese Anzeige basierend auf Ihrer Navigation auf unserer Website und den Suchkriterien, die du verwendet hast.
Energieausweistyp
Verbrauchsausweis
Gebäudetyp
Wohngebäude
Baujahr laut Energieausweis
1958
Wesentliche Energieträger
Gas
Gültigkeit
11.11.2025 bis 11.11.2026
Effizienzklasse
F
Endenergieverbrauch
175,00 kWh/(m²·a)
Weitere Energiedaten
Energieträger
Gas
Heizungsart
Ofen
Details
Objektbeschreibung
Bei den angebotenen Objekten handelt es sich um zwei Mehrfamilienhäuser in beliebter, ruhiger Wohnlage von Kasseedorf.
Die zwei über Eck stehenden Gebäude werden über einen innen liegenden Parkplatz verbunden.
Auf dem Parkplatz sind 10 Parkplätze vorhanden, die den Mietern zur Verfügung stehen.
Das links liegende...
Ausstattung
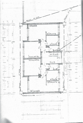
Die Wohnungen bzw. die Reihenhäusschen haben alle 2 Zimmer, Bad und Küche. DIe Ausstattung ist als mittel zu bezeichnen.
5 der 7 Wohnungen verfügen über eine Badewanne, 6 der 7 Wohnungen verfügen neben der Gas-Zentralheizung über eigene Kaminöfen, welche für wohlige Wärme sorgen.
Die beiden Erdgeschoßwohnungen verfügen...
Weitere Informationen
Sonstiges
Die Nettokaltmieten betragen 41.088,-- EUR.
Bei Fragen freuen wir uns über Ihre Kontaktaufnahme.
Heizungsart:
Heizkoerper
Dokumente
Anbieter der Immobilie
Immobilien Hoffmann
Am Feldweg 9a, 23777 Süssau
Online-ID: 2mjcj59
Finde Angebote wie dieses
Hier geht es zu unserem Impressum, den Allgemeinen Geschäftsbedingungen, den Hinweisen zum Datenschutz und nutzungsbasierter Online-Werbung.