

EDE INVEST GmbH & Co. KG
Herr Michael Keil
+49 ···
Nr. anzeigenPreise & Kosten
Provision für Käufer
3,57 % inkl. MwSt. (3,00 % netto) inkl. MwSt.
Lage
Die Villa befindet sich in der gefragten Region Rosenheim, im charmanten Bruckmühl (PLZ 83052). Diese Lage bietet eine ideale Kombination aus ländlicher Ruhe und urbanem Komfort.
Die Infrastruktur ist hervorragend, mit schnellen Anbindungen an den Nahverkehr und die Autobahn. Einkaufsmöglichkeiten, Schulen und...
Das Haus
Kategorie
Villa
Baujahr
2018
Bezug
Sofort
Energie & Heizung
Warum sehe ich diese Anzeige? – Du siehst diese Anzeige basierend auf Ihrer Navigation auf unserer Website und den Suchkriterien, die du verwendet hast.
Energieausweistyp
Bedarfsausweis
Gebäudetyp
Wohngebäude
Baujahr laut Energieausweis
2017
Wesentliche Energieträger
LUFTWP
Gültigkeit
bis 17.01.2033
Effizienzklasse
A+
Endenergiebedarf
27,40 kWh/(m²·a)
Details
Objektbeschreibung
Willkommen in Bruckmühl - hier erwartet Sie eine exklusive Villa, die zeitgemäßen Wohnkomfort mit anspruchsvoller Architektur auf elegante Weise verbindet.
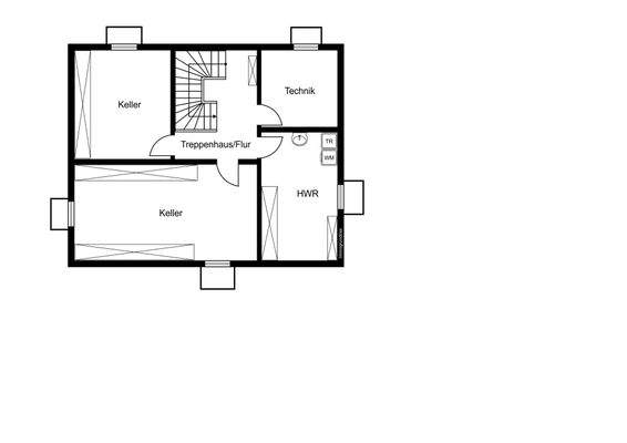
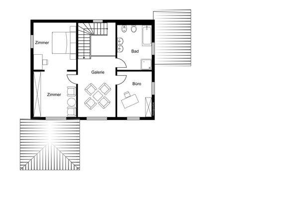
Die im Jahr 2018 errichtete, neuwertige Immobilie verfügt über eine Wohnfläche von ca. 159 m² sowie zusätzliche ca. 60 m² Nutzfläche und bietet damit großzügigen...
Ausstattung
Ausstattung und Technik
.Fußbodenheizung im gesamten Haus
.Luft-/Wasser-Wärmepumpe als effizientes Heizsystem
.Vorhandene Wasseraufbereitungsanlage
.LAN-Anschlüsse in allen Zimmern
.Integriertes Surround-Sound-System
.SAT-Anlage für TV-Empfang
Sicherheit und Qualität
.Hochwertige Schalter und...
Weitere Informationen
Sonstiges
Alle in diesem Exposé verwendeten Angaben beruhen auf Informationen von Dritten (z.B. Eigentümer, Hausverwaltung, etc.) und daher freibleibend und ohne jegliche Gewähr. Zahlenangaben sind immer als ca-Angaben zu verstehen. Irrtum, Änderungen, Zwischenverkauf oder Zwischenvermietung bleiben vorbehalten. Die...
Dokumente
Anbieter der Immobilie
EDE INVEST GmbH & Co. KG
Bavariaring 18, 80336 München

Online-ID: 2mjcp5r
Referenznummer: 6490_1
Finde Angebote wie dieses
Hier geht es zu unserem Impressum, den Allgemeinen Geschäftsbedingungen, den Hinweisen zum Datenschutz und nutzungsbasierter Online-Werbung.