
Evernest GmbH
Melina Ifrah
+49 ···
Nr. anzeigenPreise & Kosten
Provision für Käufer
3.57 inkl. MwSt.
Bei Abschluss eines notariellen Kaufvertrages ist eine Käuferprovision vom Käufer in Höhe von 3.57 % inkl. MwSt. aus dem Kaufpreis fällig.
Lage
Zehlendorf Wannsee - Das Anwesen befindet sich in einer ruhigen, von eleganten Villen und Einfamilienhäusern geprägten Wohnstraße, nur einen Katzensprung vom Kleinen Wannsee und dem idyllischen Pohlesee entfernt. Der angrenzende Wald mit seinen herrlichen Wanderwegen ist in nur etwa 15 Gehminuten erreichbar, während...
Das Haus
Kategorie
Villa
Baujahr
1985
Energie & Heizung
Warum sehe ich diese Anzeige? – Du siehst diese Anzeige basierend auf Ihrer Navigation auf unserer Website und den Suchkriterien, die du verwendet hast.
Energieausweistyp
Verbrauchsausweis
Gebäudetyp
Wohngebäude
Effizienzklasse
D
Weitere Energiedaten
Energieträger
Gas
Details
Objektbeschreibung
Eine Oase in Zehlendorf Kleiner Wannsee - Ihr neues Zuhause erwartet Sie!
Diese Villa befindet sich in einer der begehrtesten Lagen Berlins, nur wenige Schritte vom idyllischen Kleiner Wannsee entfernt. Eingebettet in eine ruhige, von historischen Villen gesäumte Wohnstraße, bietet die Villa auf einem ca. 760 m² großen...
Ausstattung
* Villa in einer ruhigen, von historischen Villen gesäumten Wohnstraße
* nur wenige Schritte vom idyllischen See Am Kleinen Wannsee
* ca. 760 m² großzügiges Grundstück liebevoll angelegter Garten mit hoher Privatsphäre
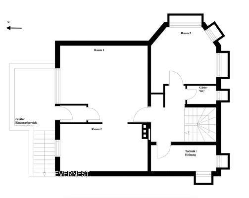
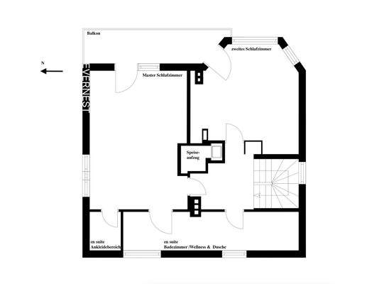
* ca. 230 m² Gesamtfläche bestehend aus Wohn-Nutzfläche
* ca. 173 m² Wohnfläche auf drei Etagen...
Weitere Informationen
Stichworte
Garage vorhanden, Nutzfläche: 54,00 m², Anzahl der Schlafzimmer: 3, Anzahl der Badezimmer: 2, Anzahl der separaten WCs: 2, Anzahl Balkone: 1, Anzahl Terrassen: 1, Gartenfläche: 760,00 m², 3 Etagen, modernisiert
Anbieter der Immobilie
Online-ID: 2mjey52
Referenznummer: L-R93O394
Finde Angebote wie dieses
Hier geht es zu unserem Impressum, den Allgemeinen Geschäftsbedingungen, den Hinweisen zum Datenschutz und nutzungsbasierter Online-Werbung.