

VIP Immobilien
Frau Amalia Kirikova
049 ···
Nr. anzeigenPreise & Kosten
Provision für Käufer
provisionsfrei
Lage
Die Nordseeinsel Juist zählt zu den exklusivsten und begehrtesten Urlaubsstandorten Deutschlands. Als autofreie Insel steht Juist für Ruhe, Entschleunigung und höchste Lebensqualität - ein Alleinstellungsmerkmal, das sie deutlich von anderen Nordseeinseln abhebt. Pferdekutschen, Fahrräder und weitläufige Spazierwege prägen...
Gastronomie/Hotel
Kategorie
Hotel
Baujahr
1990
Energie & Heizung
Warum sehe ich diese Anzeige? – Du siehst diese Anzeige basierend auf Ihrer Navigation auf unserer Website und den Suchkriterien, die du verwendet hast.
Wärme
Strom
Energieausweistyp
Verbrauchsausweis
Gebäudetyp
Nicht-Wohngebäude
Baujahr laut Energieausweis
1990
Wesentliche Energieträger
Gas
Gültigkeit
29.04.2016 bis 28.04.2026
Endenergieverbrauch (Wärme)
174,00 kWh/(m²·a) - Warmwasser enthalten
Endenergieverbrauch (Strom)
64,00 kWh/(m²·a) - Warmwasser enthalten
Weitere Energiedaten
Energieträger
Gas
Details
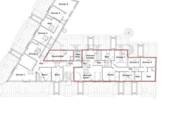
Objektbeschreibung
Provisionsfreier Verkauf:
Auf der beliebten Nordsee-Insel Juist wird in der Inselresidenz Strandburg ein Hotel-Apartment und Räume für das Hotelpersonal angeboten. Die Residenz ist sehr zentral auf Juist, in einer attraktiven Kernstadtlage, gelegen.
Das Apartment bietet mit 31 m² ausreichend Platz für bis zu vier...
Ausstattung
- Hotelapartment in der bekannten Inselresidenz Strandburg
- zusätzliche Einnahmen durch Personalräume
- hauseigene Sauna und Schwimmbad
- zentrale Lage auf einer der beliebtesten Nordseeinsel Deutschlands
Weitere Informationen
Stichworte
Gesamtfläche: 131,00 m², Bundesland: Niedersachsen
Anbieter der Immobilie

VIP Immobilien
Marktpassage 4, 26603 Aurich

Online-ID: 2mjf85s
Referenznummer: 0382
Finde Angebote wie dieses
Hier geht es zu unserem Impressum, den Allgemeinen Geschäftsbedingungen, den Hinweisen zum Datenschutz und nutzungsbasierter Online-Werbung.