
Engel & Völkers
Alexandra Tiefenthaler
+49 ···
Nr. anzeigenPreise & Kosten
Provision für Käufer
3.5 % inkl. gesetzl. MwSt.
Der Maklervertrag mit uns kommt durch die Bestätigung der Inanspruchnahme unserer Maklertätigkeit in Textform zustande. Weitere Informationen siehe Provisionshinweis.
Lage
Die Wohnung befindet sich in Konstanz-Litzelstetten, einem der beliebtesten und ruhigsten Stadtteile der Universitätsstadt Konstanz. Die idyllische Lage nahe des Bodensees vereint naturnahes Wohnen mit einer hervorragenden Anbindung an die Stadt und die umliegenden Ortschaften.
Das charmante Ortszentrum von...
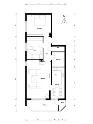
Die Wohnung
Wohnungslage
Erdgeschoss
Bezug
sofort
Wohnanlage
Energie & Heizung
Warum sehe ich diese Anzeige? – Du siehst diese Anzeige basierend auf Ihrer Navigation auf unserer Website und den Suchkriterien, die du verwendet hast.
Energieausweistyp
Verbrauchsausweis
Gebäudetyp
Wohngebäude
Baujahr laut Energieausweis
1985
Gültigkeit
seit 28.07.2017
Effizienzklasse
C
Endenergieverbrauch
88,00 kWh/(m²·a)
Weitere Energiedaten
Energieträger
Gas
Heizungsart
offener Kamin, Zentralheizung
Details
Objektbeschreibung
In begehrter und ruhiger Lage von Konstanz-Litzelstetten, nur wenige Gehminuten vom Ufer des Bodensees entfernt, präsentiert sich diese gepflegte 3,5-Zimmer-Wohnung im Hochparterre eines Mehrfamilienhauses als wahres Wohlfühlzuhause. Mit einer Wohnfläche von ca. 92,44 m² überzeugt sie durch einen durchdachten Grundriss, ein...
Ausstattung
Einbauküche, Blick ins Grüne
Preisinformation
1 Stellplatz, Kaufpreis: 15.000,00 EUR
Weitere Informationen
Provisionshinweis
3.5 % inkl. gesetzl. MwSt.
Der Maklervertrag mit uns kommt durch die Bestätigung der Inanspruchnahme unserer Maklertätigkeit in Textform zustande. Die Höhe der Provision richtet sich nach den gesetzlichen Regelungen zur Teilung der Maklerprovision. Hiernach wird die Provision regelmäßig für beide...
Anbieter der Immobilie
Online-ID: 2mjhy5x
Referenznummer: I-047BUO-W-047BUO
Finde Angebote wie dieses
Weitere Immobilien
Hier geht es zu unserem Impressum, den Allgemeinen Geschäftsbedingungen, den Hinweisen zum Datenschutz und nutzungsbasierter Online-Werbung.