
RE/MAX First REM Immobilienmakler GmbH & Co KG
Herr Moritz Zoigner
+43 ···
Nr. anzeigenPreise & Kosten
Provision für Käufer
3% des Kaufpreises zzgl. 20% USt.
Das Haus
Kategorie
Villa
Baujahr
2022
Energie & Heizung
Warum sehe ich diese Anzeige? – Du siehst diese Anzeige basierend auf Ihrer Navigation auf unserer Website und den Suchkriterien, die du verwendet hast.
Heizwärmebedarf (HWB)
44,80 kWh/(m²·a)
Details
Objektbeschreibung
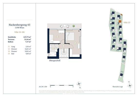
Am sonnigen Südhang des Hackenbergs im Herzen Sieverings verführt diese Villa mit knapp 130 m² Nutzfläche auf 3 Ebenen, einer privaten Sauna und eigenem Outdoor-Pool. Ausgestattet mit stilvoller Eleganz und erlesenem Geschmack.
Erdgeschoß: Vorraum, WC, Wohnküche, 33,5 m² Terrasse
Untergeschoß: Schlafzimmer, Bad...
Weitere Informationen
Stichworte
Anzahl Balkone: 1, Anzahl Terrassen: 1, Balkon-Terrassen-Fläche: 40,81 m², Bundesland: Wien
Anbieter der Immobilie
RE/MAX First REM Immobilienmakler GmbH & Co KG
Hietzinger Hauptstrasse 22/D/9, 1130 WIEN
Online-ID: 2mjjb5c
Referenznummer: OBGC202510280316592354dd10601c1
Finde Angebote wie dieses
Günstige Immobilienfinanzierung einfach online berechnen
Persönliches Angebot berechnenWarum sehe ich diese Werbung? – Du siehst diese Werbung basierend auf Deiner Navigation auf unserer Website und der von Dir verwendeten Suchkriterien.
Diese Werbung wird bezahlt von durchblicker
Werbung melden
Hier geht es zu unserem Impressum, den Allgemeinen Geschäftsbedingungen, den Hinweisen zum Datenschutz und nutzungsbasierter Online-Werbung.