
Walddörfer Immobilien Wewer KG
Frau Katrin Wewer
004 ···
Nr. anzeigenPreise & Kosten
Provision für Käufer
3,57% inkl. MwSt. inkl. MwSt.
Lage
Das Grundstück liegt an einer ruhigen Einbahnstraße im Herzen von Hamburg-Altona.
Die Infrastruktur ist ausgezeichnet, mit hervorragenden Einkaufsmöglichkeiten und öffentlichen Verkehrsmitteln in unmittelbarer Nachbarschaft.
- IKEA, div. Läden/Geschäfte: 250m
- Einkaufszentrum Altona: 600m
- S-Bahnhof/Busbahnhof...
Das Renditeobjekt
Kategorie
Mehrfamilienhaus
Baujahr
1890
Details
Objektbeschreibung
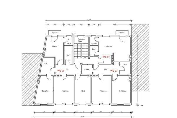
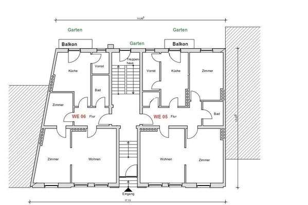
Zum Verkauf angeboten wird ein Mehrfamilienhaus aus der Gründerzeit mit 15 Wohneinheiten in guter, ruhiger und gesuchter Lage von Altona (Altstadt). Das um das Jahr 1890 erbaute Haus mit baustiltypischen Fassadenelementen befindet sich in gutem, teilsanierten Zustand und ist voll vermietet.
In den Jahren 2006-2011...
Ausstattung
Zusammenfassung:
------------------------------
Baujahr lt. Energieausweis: 1890
Wohnfläche/total: 699,4m²
Grundstücksgröße ca.: 350m²
Anzahl der Wohnungen: 15
Objektzustand: teilmodernisiert
Vermietbarkeit: sehr gut / voll vermietet
Kaufpreis: € 2.625.000,-
Kaufpreis/Wohnfläche: €...
Preisinformation
Soll-Mieteinnahmen pro Jahr: 94.023,24 EUR
Ist-Mieteinnahmen pro Jahr: 94.023,24 EUR
Weitere Informationen
Stichworte
Gesamtfläche: 772,00 m², vermietbare Fläche: 699,40 m², Anzahl der Wohneinheiten: 15, Distanz zum Kindergarten: 0.40, Distanz zur Grundschule: 0.70, Distanz zur Realschule: 1.00, Distanz zum Gymnasium: 0.30, Distanz zur Autobahn: 3.90, Distanz vom Zentrum: 5.50
Anbieter der Immobilie
Walddörfer Immobilien Wewer KG
Saseler Markt 12A, 22393 Hamburg
Online-ID: 2mjjl5a
Referenznummer: 2304V
Finde Angebote wie dieses
Hier geht es zu unserem Impressum, den Allgemeinen Geschäftsbedingungen, den Hinweisen zum Datenschutz und nutzungsbasierter Online-Werbung.