
selbst vermarkten UG (haftungsbeschränkt)
SV Immobilien UG
Kontaktiere den Anbieter schriftlich, es ist keine Telefonnummer hinterlegt.
Preise & Kosten
Kaution
3.200,00
Warum sehe ich diese Anzeige? – Du siehst diese Anzeige basierend auf Ihrer Navigation auf unserer Website und den Suchkriterien, die du verwendet hast.
Lage
Das Objekt liegt in Schwerte Holzen.
Der Stadtteil Holzen ist eine bevorzugte Wohngegend in Schwerte.
Das Wohnung befindet sich in einer verkehrberuhigten Anliegerstraße.
Kinder finden daher eine Spielfläche bereits vor dem Haus, außerdem gibt es mehrere Spielplätze in der Nachbarschaft.
Ebenfalls nur...
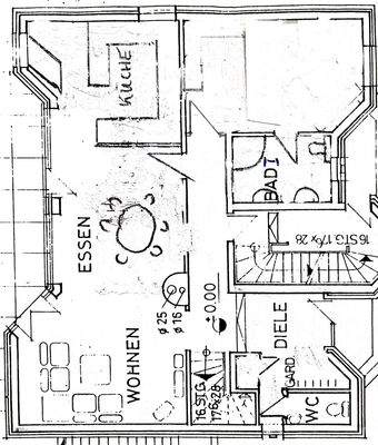
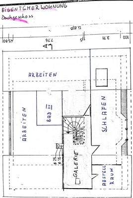
Die Wohnung
Kategorie
Maisonette
Wohnungslage
1. Geschoss
Bezug
Sofort
Wohnanlage
Energie & Heizung
Warum sehe ich diese Anzeige? – Du siehst diese Anzeige basierend auf Ihrer Navigation auf unserer Website und den Suchkriterien, die du verwendet hast.
Weitere Energiedaten
Heizungsart
Etagenheizung
Details
Objektbeschreibung
Für eine sehr schöne und geräumige Wohnung in Schwerte-Holzen wird ein Nachmieter ab sofort gesucht.
Es handelt sich um eine "Haus-im-Haus" Wohnung über 3 Etagen mit eigenem Garten.
Ideal auch für eine Großfamilie mit ein oder zwei betagteren Angehörigen. Sie wäre auch für eine WG geeignet. Nur z.B. 2 Pärchen, 1...
Ausstattung
ACHTUNG insbesondere Heizkosten
Nota bene: Heizkosten und Warmwasser NICHT in Kaltmiete
und Nebenkosten-VZ enthalten!!
Elektrische Fußbodenheizung/Speicheröfen und Durchlauferhitzer
laufen über jeweils eigene Zähler der Mietparteien und nicht.
über den Vermieter!
Preisinformation
2 Garagenstellplätze
Weitere Informationen
Stichworte
Garage vorhanden, Nutzfläche: 170,00 m², Anzahl der Badezimmer: 3
Anbieter der Immobilie
selbst vermarkten UG (haftungsbeschränkt)
Gundermannstr. 80, 80935 München
SV Immobilien UG
Dein Ansprechpartner
Kontaktiere den Anbieter schriftlich, es ist keine Telefonnummer hinterlegt.
Online-ID: 2mjjs58
Referenznummer: gg1SeyuB
Finde Angebote wie dieses
Hier geht es zu unserem Impressum, den Allgemeinen Geschäftsbedingungen, den Hinweisen zum Datenschutz und nutzungsbasierter Online-Werbung.