Version: 8.25.1Navigation überspringen
11 €
15 Zimmer  •  700 m² Bürofläche
Immowelt logo

Bürofläche zur Miete
11 €
/m²
15 Zimmer  •  700 m² Bürofläche

Helle, flexibel nutzbare Bürofläche (ca. 700 m²) im Gewerbegebiet Freiburg-Haid – ab 2026 - **keine Courtage**

Nachmieter gesucht: Ab 2026 steht eine helle, unmöblierte und in den letzten Jahren komplett renovierte Bürofläche mit ca. 700 m² im Gewerbegebiet Freiburg-Haid zur Verfügung. Flexible Nutzung und Einzug möglich. Objektbeschreibung: Diese moderne Bürofläche bietet vielseitige Nutzungsmöglichkeiten und ein professionelles Arbeitsumfeld. Die ca. 700 m² große Fläche ist großzügig geschnitten, lichtdurchflutet und kann sowohl zusammenhängend als auch als geteilte Fläche für mehrere Teams genutzt werden.

Merkmale

  • frei ab sofort
  • Personenaufzug
  • Bodenbelag: Teppich
  • Beleuchtung: Deckenbeleuchtung
  • Balkon
  • Terrasse
  • Außen-Stellplatz, Tiefgarage
  • Fenster: Kunststoff
Ausstattungsmerkmale: -Flexible Raumnutzung: zusammenhängend oder teilbar -Helle, offene und großzügige Räume -In den letzten Jahren komplett renoviert -Neuer Teppichboden -Große moderne Küche + zusätzliche Teeküche -Glastrennwände -Teilweise klimatisiert -Parkplätze und Tiefgaragenplätze vorhanden -Einzug flexibel nach Vereinbarung ab 2026

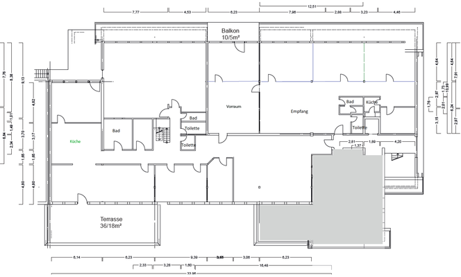
Grundrisse

Grundrisse
1 / 1

Realisiere Dein Projekt

Bausubstanz und Energie

Möchtest du Details zum Energieverbrauch?info_energy_calculation-icon
  • HeizungsartZentralheizung
Immowelt logo

Mietkosten

Nettomiete zzgl. Nebenkosten
11 €/m²
7.678 €
Provision für Mieter
Bitte beachte, das Angebot kann bei Vertragsabschluss die Zahlung einer Provision beinhalten. Weitere Informationen erhältst Du vom Anbieter.
Kaution
keine Angabe

Lage

address-icon
St. GeorgenFreiburg im Breisgau (79111)
Der Anbieter hat die genaue Adresse nicht freigegeben
Die Bürofläche befindet sich im Gewerbegebiet Freiburg-Haid, einem dynamischen Unternehmensstandort mit sehr guter Anbindung an Straße und öffentlichen Nahverkehr. Mitarbeiter und Kunden profitieren von der zentralen Lage und der schnellen Erreichbarkeit.

Weitere Informationen

Sonstiges Info: Anzahl Etagen: 3 Mietkonditionen: Einzug: flexibel ab 2026 11 EUR / qm Kaltmiete Weitere Mietdetails: auf Anfrage Eine Besichtigung kann jederzeit nach Absprache stattfinden. Heizungsart: Heizkoerper

Weitere Services

Lust auf eine Besichtigung?
Eine Frage zur Immobilie?
Mit einer persönlichen Nachricht hast du bessere Chancen auf eine Antwort.
Mit der Nutzung der oben angegebenen Telefonnummer oder durch Klicken auf „Kontaktieren“ akzeptierst Du die Allgemeinen Nutzungsbedingungen, denen Du jederzeit widersprechen kannst. Weitere Informationen zum Datenschutz

Über den Anbieter

Burkheimerstraße 3, 79111 Freiburg
Online-ID: 25911ARY7NX2
Viato GmbH
Mit einer persönlichen Nachricht hast du bessere Chancen auf eine Antwort.
Mit der Nutzung der oben angegebenen Telefonnummer oder durch Klicken auf „Kontaktieren“ akzeptierst Du die Allgemeinen Nutzungsbedingungen, denen Du jederzeit widersprechen kannst. Weitere Informationen zum Datenschutz
Wie zufrieden bist du mit dieser Seite (nicht mit der Immobilie selbst)?