Semmelhaack Grundvermögen Dritte GmbH & Co. KG

Herr Michel Pierstorf

Moderne Doppelhaushälfte in Scharbeutz!

€ 1.800
Kaltmiete zzgl. NK
106,82 m²
Wohnfläche ca.
4
Zimmer
569 m²
Grundstücksfl. ca.

Der Anbieter dieses Objekts hat gegenüber der AVIV Germany GmbH als Betreiber dieses Online-Marktplatzes erklärt, nicht als Unternehmer im Sinne des § 1 KSchG zu handeln. Die im Verbraucherschutzrecht der Union verankerten Verbraucherrechte (insbesondere Informationspflichten und Rücktritts- bzw. Widerrufsrechte) finden auf den Vertrag zwischen dem Anbieter des Objekts und Ihnen (dem Interessenten) keine Anwendung.

Gewerblicher Anbieter

Der Anbieter dieses Objekts hat gegenüber der AVIV Germany GmbH als Betreiber dieses Online-Marktplatzes erklärt, als Unternehmer im Sinne des § 1 KSchG zu handeln.

AdresseHofblick 19a
23683 Scharbeutz 
Auf Karte ansehen

Preise & Kosten

Kaltmiete € 1.800 Nebenkosten € 250 Heizkosten nicht in Warmmiete enthalten Warmmiete € 2.050 Preis/m² € 16,85

Kaution

3 Nettokaltmieten

Lage

Scharbeutz ist ein beliebtes Ostseebad in der Lübecker Bucht. Die neu gestaltete Dünenmeile sowie zahlreiche Restaurants, Cafés und Boutiquen laden zum Bummeln und Verweilen ein. Einkaufsmöglichkeiten, Supermärkte, Apotheken, Ärtze etc. sind zahlreich vorhanden.
In nur 20 Autominuten erreichen Sie das Zentrum der...

Mehr anzeigen

Das Haus

Kategorie

Doppelhaushälfte

  • Zustand: gepflegt
  • 2 Stellplätze
  • Einbauküche

Energie & Heizung

Weitere Energiedaten

Energieträger

Elektro

Details

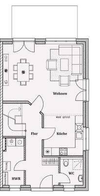
Objektbeschreibung

Willkommen in Ihrem neuen Zuhause!

Moderne Doppelhaushälfte mit 4-Zimmer und 106,82m² ab dem 15.02.2026 in Scharbeutz zu vermieten!

Im Erdgeschoss finden Sie eine geräumige Wohnküche mit voll ausgestatteter Einbauküche mit Zugang zur Terrasse und in den Garten, ein Gäste-WC mit Dusche und den HWR vor.

Das...

Mehr anzeigen

Ausstattung

Terrasse / Garten / WBad / Dbad / Einbauküche / ausgebauter Dachboden / Rollläden

Preisinformation


Kaution: 3 Nettokaltmieten

Weitere Informationen

Sonstiges
2 Jahre Mietbindung
Staffelmietvertrag
Kosten für Strom und Gas sind direkt mit dem Versorger abzurechnen


Energieausweis: Bedarfsausweis
Baujahr: 2017
Energiepass erstellt am: 08.05.2017
Endenergiebedarf: 39.3 kWh / (m² * a)
Energieeffizienzklasse: A
Wesentliche Energieträger...

Mehr anzeigen

Anbieter der Immobilie

Partner

Semmelhaack Grundvermögen Dritte GmbH & Co. KG

im Durchschnitt  4,50  Sterne
(bei 23 Bewertungen)

Kaltenweide 85, 25335 Elmshorn

user

Herr Michel Pierstorf

Dein Ansprechpartner

Anbieter-Website Anbieter-Profil Anbieter-Impressum

Online-ID: 2mjkb5z

Referenznummer: 68404

Finde Angebote wie dieses

imageimageimage

Hier geht es zu unserem Impressum, den Allgemeinen Geschäftsbedingungen, den Hinweisen zum Datenschutz und nutzungsbasierter Online-Werbung.