viennareal Immobilienmanagement GmbH

Frau Nathalie Ghraizi

UNBEFRISTET - Lichtdurchflutete 3,5 Zimmer Maisonette-Wohnung mit Galerie und 49 m2 Dachterrasse - Hoflage

€ 2.367,63
Gesamtmiete inkl. BK
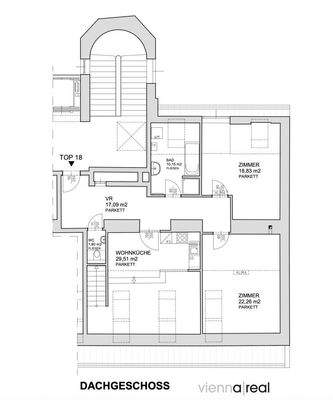
119,71 m²
Wohnfläche ca.
3,5
Zimmer

Der Anbieter dieses Objekts hat gegenüber der AVIV Germany GmbH als Betreiber dieses Online-Marktplatzes erklärt, nicht als Unternehmer im Sinne des § 1 KSchG zu handeln. Die im Verbraucherschutzrecht der Union verankerten Verbraucherrechte (insbesondere Informationspflichten und Rücktritts- bzw. Widerrufsrechte) finden auf den Vertrag zwischen dem Anbieter des Objekts und Ihnen (dem Interessenten) keine Anwendung.

Gewerblicher Anbieter

Der Anbieter dieses Objekts hat gegenüber der AVIV Germany GmbH als Betreiber dieses Online-Marktplatzes erklärt, als Unternehmer im Sinne des § 1 KSchG zu handeln.

AdresseWiedner Hauptstraße
1040 Wien 
(Wieden)
Auf Karte ansehen

Preise & Kosten

Gesamtmiete

inkl. Betriebskosten

€ 2.367,63
Nettokaltmiete € 1.795,65 Betriebskosten € 286,11

Kaution

9.470,52 €

Provision für Mieter

Gemäß Erstauftraggeberprinzip bezahlt der Abgeber die Provision.

Lage

nahe Einkaufspassage Galerie Wieden, Bundeswirtschaftskammer, Sozialversicherungsanstalt

Die Wohnung

Wohnungslage

4. Geschoss (Dachgeschoss)

Bezug

01.02.2026

  • Bad mit Fenster, Wanne und Dusche
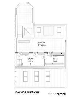
  • Terrasse
  • offene Küche
  • Böden: Fliesenboden, Parkett
  • voll klimatisiert

Wohnanlage

  • Baujahr: 1891
  • Zustand: Altbau (bis 1945)

Energie & Heizung

Heizwärmebedarf (HWB)

C

73,40 kWh/(m²·a)

Gesamtenergieeffizienz (fGEE)

C

1,19

Weitere Energiedaten

Energieträger

Gas

Heizungsart

Etagenheizung

Details

Objektbeschreibung

ENGLISH VERSION BELOW

In der _Galerie Wieden_ (ca. 2 Minuten zu Fuß entfernt) können Garagenplätze für rund € 122 brutto pro Monat gemietet werden. 

BESCHREIBUNG

Diese lichtdurchflutete 3,5 Zimmer Dachgeschosswohnung mit zusätzlicher Galerie-Fläche befindet sich in einem gepflegten...

Mehr anzeigen

Preisinformation

Nettokaltmiete: 1.795,65 EUR

Weitere Informationen

Stichworte
Fahrradraum, Anzahl der Badezimmer: 1, Anzahl der separaten WCs: 1, Anzahl Terrassen: 1, Balkon-Terrassen-Fläche: 48,86 m², Bundesland: Wien, 5 Etagen, modernisiert

Anbieter der Immobilie

Partner

viennareal Immobilienmanagement GmbH

im Durchschnitt  3,40  Sterne
(bei 2 Bewertungen)

Gersthoferstraße 89, 1180 WIEN

user

Frau Nathalie Ghraizi

Dein Ansprechpartner

Anbieter-Impressum

Online-ID: 2mjlh5x

Referenznummer: OBGC202601051529563319169b3e8ff

Finde Angebote wie dieses

imageimageimage

Hier geht es zu unserem Impressum, den Allgemeinen Geschäftsbedingungen, den Hinweisen zum Datenschutz und nutzungsbasierter Online-Werbung.