VON POLL IMMOBILIEN Ratingen/Mettmann - Dr. Strömer und Flücken Immobilien GmbH

Frau Alina Karla

Außergewöhnlich Wohnen und Arbeiten im Herzen der Mettmanner Oberstadt

€ 875.000
Kaufpreis
307 m²
Wohnfläche ca.
9
Zimmer
156 m²
Grundstücksfl. ca.

Der Anbieter dieses Objekts hat gegenüber der AVIV Germany GmbH als Betreiber dieses Online-Marktplatzes erklärt, nicht als Unternehmer im Sinne des § 1 KSchG zu handeln. Die im Verbraucherschutzrecht der Union verankerten Verbraucherrechte (insbesondere Informationspflichten und Rücktritts- bzw. Widerrufsrechte) finden auf den Vertrag zwischen dem Anbieter des Objekts und Ihnen (dem Interessenten) keine Anwendung.

Gewerblicher Anbieter

Der Anbieter dieses Objekts hat gegenüber der AVIV Germany GmbH als Betreiber dieses Online-Marktplatzes erklärt, als Unternehmer im Sinne des § 1 KSchG zu handeln.

AdresseStraße nicht freigegeben
40822 Mettmann 
Auf Karte ansehen

Preise & Kosten

Kaufpreis € 875.000

Provision für Käufer

Käuferprovision beträgt 3,57 % (inkl. MwSt.) des beurkundeten Kaufpreises

Lage

Das Objekt liegt in Mettmanns begehrtester Lage - direkt auf dem historischen Marktplatz der Oberstadt. Umgeben von Fachwerkhäusern, gepflasterten Gassen und der imposanten St. Lambertus Kirche vereint das Viertel geschichtsträchtige Atmosphäre mit urbanem Flair.

Charmante Cafés, individuelle Boutiquen und kleine...

Mehr anzeigen

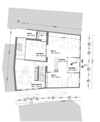
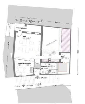
Das Haus

Baujahr

1646

  • Zustand: renoviert / saniert
  • teilweise unterkellert
  • Terrasse
  • Gäste-WC
  • Böden: Parkett
  • barrierefrei

Energie & Heizung

info

Energieausweis: für diesen Gebäudetyp nicht notwendig

Weitere Energiedaten

Energieträger

Gas, Solar

Heizungsart

Zentralheizung

Details

Objektbeschreibung

Errichtet im Jahr 1646, wurde die Immobilie zuletzt 2017 umfassend kernsaniert und präsentiert sich heute in vollständig renoviertem Zustand. Besonderes Augenmerk wurde hierbei auf die Erhaltung der historischen Elemente gelegt, die harmonisch mit zeitgemäßer Ausstattung verbunden wurden und so ein einzigartiges Wohnambiente...

Mehr anzeigen

Ausstattung

Komplette Kernsanierung nach Abstimmung mit der Denkmalschutzbehörde


2017:
Neue Heizung
Neue Fenster
Solarthermie
Handgehobeltes Eichenholzparkett
Neue Leitungen (Wasser und Heizung)
Effiziente Raumaufteilung
Neue Innendämmung der Fassade und des Daches
Vollständig neue...

Mehr anzeigen

Weitere Informationen

Sonstiges
GELDWÄSCHE: Als Immobilienmaklerunternehmen ist die von Poll Immobilien GmbH nach § 2 Abs. 1 Nr. 14 und § 11 Abs. 1, 2 Geldwäschegesetz (GwG) dazu verpflichtet, bei der Begründung einer Geschäftsbeziehung die Identität des Vertragspartners festzustellen und zu überprüfen, bzw. sobald ein ernsthaftes Interesse an...

Mehr anzeigen

Anbieter der Immobilie

Partner
user

Frau Alina Karla

Dein Ansprechpartner

Anbieter-Website Anbieter-Profil Anbieter-Impressum

Online-ID: 2mjmf5c

Referenznummer: 25 457 032

Finde Angebote wie dieses

imageimageimage

Hier geht es zu unserem Impressum, den Allgemeinen Geschäftsbedingungen, den Hinweisen zum Datenschutz und nutzungsbasierter Online-Werbung.