
Berlinhaus Verwaltung GmbH
Gewerbe - Berlin
+49 ···
Nr. anzeigenPreise & Kosten
nicht in Warmmiete enthalten
Provision für Mieter
provisionsfrei
Warum sehe ich diese Anzeige? – Du siehst diese Anzeige basierend auf Ihrer Navigation auf unserer Website und den Suchkriterien, die du verwendet hast.
Lage
Die Gewerbefläche befindet sich in zentraler Lage von Berlin-Schöneberg an der belebten Martin-Luther-Straße. Der Standort profitiert von einer sehr guten Anbindung an den öffentlichen Nahverkehr: Die U-Bahnhöfe Bayerischer Platz und Nollendorfplatz sowie mehrere Buslinien befinden sich in unmittelbarer Nähe. Auch die...
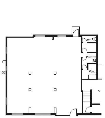
Die Ladenfläche
Kategorie
Laden
Baujahr
1977
Bezug
30.06.2026
Energie & Heizung
Warum sehe ich diese Anzeige? – Du siehst diese Anzeige basierend auf Ihrer Navigation auf unserer Website und den Suchkriterien, die du verwendet hast.
Energieausweistyp
Verbrauchsausweis
Gebäudetyp
Nicht-Wohngebäude
Baujahr laut Energieausweis
1977
Endenergieverbrauch (Wärme)
127,00 kWh/(m²·a)
Weitere Energiedaten
Energieträger
Gas, Öl
Heizungsart
Zentralheizung
Details
Objektbeschreibung
Die großzügige, ebenerdige Verkaufsfläche mit ca. 150 m² überzeugt durch ihren offenen Grundriss und ihre ausgezeichnete Sichtbarkeit. Die ca. 15 Meter breite Schaufensterfront entlang der Martin-Luther-Straße bietet ideale Präsentationsmöglichkeiten für Produkte und Dienstleistungen und schafft eine helle, einladende...
Ausstattung
Keyfacts
Gesamtfläche ca. 173 m² (Verkaufsfläche + Nebenräume)
Verkaufsfläche ca. 150 m², offen und flexibel gestaltbar
Schaufensterfront ca. 15 m breit, ideal für Werbung und Präsentation
Lagerflächen im Untergeschoss verfügbar
Stellplätze im Hof und Tiefgarage optional anmietbar
Verfügbarkeit ab...
Weitere Informationen
Sonstiges
Heizungsart: Zentralheizung
Baujahr: 1977
Da es sich um einen geförderten Wohnungsbau handelt, erhöht sich die Nettokaltmiete jährlich um 0,13 € / m² (Förderungsabbau). Für die Anmietung der Wohnung ist ein Wohnberechtigungsschein erforderlich.
Die Kaution beträgt 3 Nettokaltmieten.
Ein...
Anbieter der Immobilie
Berlinhaus Verwaltung GmbH
Friedrichstr. 30, 10969 Berlin
Online-ID: 2mjn75d
Referenznummer: 3617
Finde Angebote wie dieses
Hier geht es zu unserem Impressum, den Allgemeinen Geschäftsbedingungen, den Hinweisen zum Datenschutz und nutzungsbasierter Online-Werbung.