

IFC Immobiliengesellschaft mbH
Herr Paul-Ludwig Blümel
034 ···
Nr. anzeigenPreise & Kosten
Provision für Käufer
3,5 % zzgl. MwSt.
Das Haus
Kategorie
Reihenmittelhaus
Baujahr
1936
Energie & Heizung
Warum sehe ich diese Anzeige? – Du siehst diese Anzeige basierend auf Ihrer Navigation auf unserer Website und den Suchkriterien, die du verwendet hast.
Energieausweistyp
Bedarfsausweis
Gebäudetyp
Wohngebäude
Baujahr laut Energieausweis
1936
Wesentliche Energieträger
GAS
Gültigkeit
bis 18.12.2035
Effizienzklasse
E
Endenergiebedarf
136,00 kWh/(m²·a)
Weitere Energiedaten
Energieträger
Gas
Heizungsart
Zentralheizung
Details
Objektbeschreibung
Baujahr:
ca. 1936
Raumaufteilung:
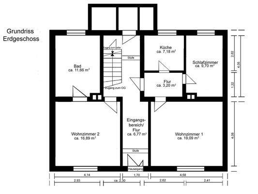
Erdgeschoss:
2 Wohnzimmer, Schlafzimmer, Küche, Bad, Flur, Waschküche im Anbau
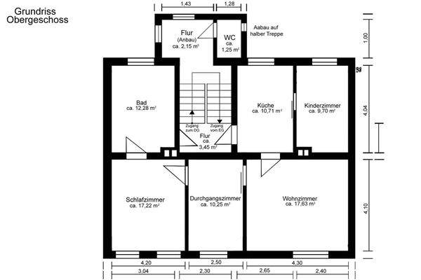
Obergeschoss:
Wohnzimmer, Schlafzimmer, Kinderzimmer, Durchgangszimmer, Küche, Bad, Flur
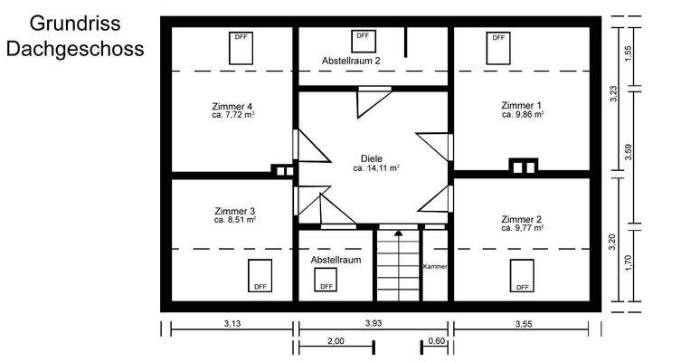
Dachgeschoss:
4 Zimmer, 3 Abstellräume, Diele
Unter- /...
Ausstattung
Sanierung
Dach:
ca. 1987 - mit Ziegeln gedeckt
Fassade:
Klinkerfassade
ca. 1998 - gereinigt
Fenster:
ca. 1999 - Straßenseite: Kunststoff innen weiß / außen braun
ca. 1999 - Rückseite: Kunststoff weiß
Jalousien im EG und OG
Nebengelass großteils mit Holzfenstern
Türen:
EG /...
Weitere Informationen
Stichworte
Anzahl der Schlafzimmer: 7, Anzahl der Badezimmer: 2, Anzahl der separaten WCs: 2, 3 Etagen
Anbieter der Immobilie

Online-ID: 2mjq55t
Referenznummer: 2036
Finde Angebote wie dieses
Hier geht es zu unserem Impressum, den Allgemeinen Geschäftsbedingungen, den Hinweisen zum Datenschutz und nutzungsbasierter Online-Werbung.