
Viek & Berg GbR Hauswert-Immobilien
Herr Thomas Viek
+49 ···
Nr. anzeigenPreise & Kosten
Provision für Käufer
4,76% inkl.MwsT inkl. MwSt.
Die Maklerprovision bezieht sich auf die Kaufvertragssumme und wird bei Kaufvertragsabschluss fällig und ist vom Käufer zu zahlen. Die Immobilie unterliegt nicht den Vorschriften des § 656a-d BGB
Abschreibung/Anlage
Denkmalschutz-Afa
Lage
Das Haus befindet sich in ruhiger Lage in der Ortsmitte von Schwalbach. Fußläufig erreichen Sie Geschäfte des täglichen Bedarfs. Schwalbach liegt nord-westlich von Frankfurt, umgeben von Bad Soden, Eschborn und Sulzbach.
Das Renditeobjekt
Kategorie
Wohn- und Geschäftshaus
Baujahr
1996
Frei ab
vermietet
Energie & Heizung
Warum sehe ich diese Anzeige? – Du siehst diese Anzeige basierend auf Ihrer Navigation auf unserer Website und den Suchkriterien, die du verwendet hast.
Weitere Energiedaten
Energieträger
Gas
Heizungsart
Zentralheizung
Details
Objektbeschreibung
Sie suchen eine Kapitalanlage mit wohnwirtschaftlicher und gewerblicher (Büro) Nutzung ? Dann sind Sie hier genau richtig! Zum Verkauf stehen zwei Gebäudeteile die derzeit wohnwirtschaftlich und gewerblich genutzt werden. Alternativ kann der Gewerbeteil später auch in Wohnraum umgewandelt werden und eine weitere Möglichkeit...
Ausstattung
EG:
Altbau: 3 Büros, Teeküche sowie 2-Zimmer-Wohnung mit Küche und Bad, Abstellraum, ca. 42m²
Neubau: ca. 46m² Büroflächen (aktuell geteilt)
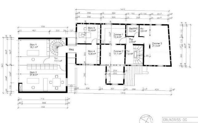
OG:
Altbau: 2 Büros sowie 3-Zimmer-Wohnung mit Küche und Bad, ca. 60m²
Neubau: ca.46m² Büroflächen (aktuell geteilt)
DG:
Altbau: 2,5-zimmer-Wohnung Küche...
Preisinformation
1 Stellplatz
Ist-Mieteinnahmen pro Jahr: 47.640,00 EUR
Weitere Informationen
Sonstiges
HINWEIS zum PROVISIONSANSPRUCH: Die Maklerprovision bezieht sich auf die Kaufvertragssumme und wird bei Kaufvertragsabschluss fällig. Sie ist vom Käufer zu zahlen. Die Immobilie unterliegt nicht den Vorschriften des § 656a-d BGB.
Gerne vereinbaren wir mit Ihnen einen individuellen Besichtigungstermin, in...
Anbieter der Immobilie
Viek & Berg GbR Hauswert-Immobilien
Frölingstr 53, 61348 Bad Homburg
Online-ID: 2mjqb5w
Referenznummer: BW13290
Finde Angebote wie dieses
Hier geht es zu unserem Impressum, den Allgemeinen Geschäftsbedingungen, den Hinweisen zum Datenschutz und nutzungsbasierter Online-Werbung.