

DAHLER Chiemsee & Rosenheim - PRIME HOUSE GmbH
Herr Stephan Balte
+49 ···
Nr. anzeigenPreise & Kosten
Provision für Käufer
3,57 % inkl. der gesetzl. MwSt., bezogen auf den Kaufpreis inkl. MwSt.
Lage
_Region oberbayrisches Alpenvorland im Landkreis Rosenheim
_Gemeinde Breitbrunn am Chiemsee
_ruhige Lage in einer Villensiedlung
_Chiemsee in wenigen Minuten zu Fuß erreichbar
_alle Geschäfte für den täglichen Bedarf in wenigen Minuten erreichbar
_Chiemsee-Schifffahrt und Hafen in 10 Minuten zu fuß
_nächster...
Das Haus
Kategorie
Einfamilienhaus
Baujahr
2006
Bezug
2026
Energie & Heizung
Warum sehe ich diese Anzeige? – Du siehst diese Anzeige basierend auf Ihrer Navigation auf unserer Website und den Suchkriterien, die du verwendet hast.
Energieausweistyp
Bedarfsausweis
Gebäudetyp
Wohngebäude
Baujahr laut Energieausweis
2006
Wesentliche Energieträger
ERDWAERME
Gültigkeit
bis 10.12.2035
Effizienzklasse
A+
Endenergiebedarf
28,18 kWh/(m²·a)
Weitere Energiedaten
Energieträger
Erdwärme
Heizungsart
Fußbodenheizung, offener Kamin
Details
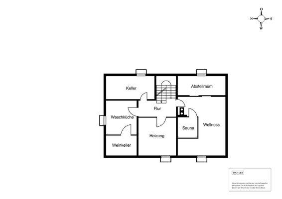
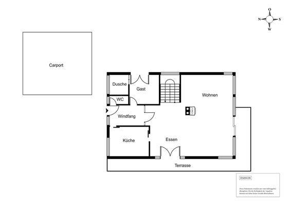
Objektbeschreibung
_moderne, energetisch optimierte Immobilie in Südausrichtung
_Transparentes Architektenhaus mit offenem Innenausbau
_großer Carport mit 2 Stellplätzen und Wallbox
_elektrische Zip-Screen-Anlage (Sonnenschutz an allen Fenstern)
_Marmor-Fußböden in allen Haupträumen
_hochwertiger Teppichboden in den...
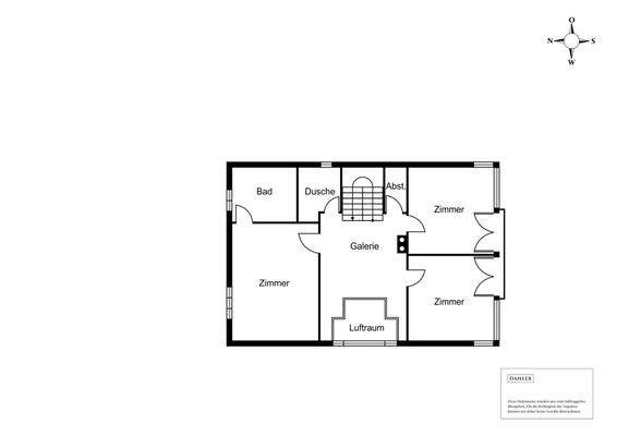
Ausstattung
_offene Galerie im Wohn- und Essbereich
_Wohnzimmer mit Kamin und ausfahrbarer Leinwand
_hochwertige Einbauküche mit Arbeitsplatte aus Granit
_großzügiger Essbereich
_1 Gästezimmer mit eigener Dusche im EG
_2 Schlafzimmer im Obergeschoss
_davon ein Master-Bedroom mit begehbarem Kleiderschrank und...
Preisinformation
2 Carportplätze
Weitere Informationen
Sonstiges
Alle graphischen Darstellungen und Bilder sind Eigentum von DAHLER Rosenheim, Inh.: PRIME HOUSE GmbH und dürfen ohne ausdrückliche Zustimmung durch DAHLER Rosenheim weitergegeben oder verwendet werden. Alle Daten und Angaben basieren auf Informationen, die uns vom Auftraggeber zur Verfügung gestellt wurden oder...
Anbieter der Immobilie
DAHLER Chiemsee & Rosenheim - PRIME HOUSE GmbH
Weinstraße 2, 83022 Rosenheim

Online-ID: 2mjqn5p
Referenznummer: DC-ROS-1628
Finde Angebote wie dieses
Hier geht es zu unserem Impressum, den Allgemeinen Geschäftsbedingungen, den Hinweisen zum Datenschutz und nutzungsbasierter Online-Werbung.