
Immo Flair
Wadim Kiritschko
096 ···
Nr. anzeigenPreise & Kosten
Provision für Käufer
provisionsfrei
Lage
Das Haus befinden sich in einer idyllischen Umgebung, die durch eine harmonische Integration der Architektur in die natürliche Landschaft überzeugt. Die Region bietet eine ruhige, naturnahe Atmosphäre, ideal für Familien oder Menschen, die hohen Wert auf Lebensqualität und Nachhaltigkeit legen. Die verwendeten Baumaterialien...
Das Haus
Kategorie
Einfamilienhaus
Baujahr
2025
Bezug
sofort
Energie & Heizung
Warum sehe ich diese Anzeige? – Du siehst diese Anzeige basierend auf Ihrer Navigation auf unserer Website und den Suchkriterien, die du verwendet hast.
Energieausweistyp
Bedarfsausweis
Gebäudetyp
Wohngebäude
Gültigkeit
13.05.2025 bis 13.05.2035
Effizienzklasse
A
Endenergiebedarf
42,90 kWh/(m²·a)
Weitere Energiedaten
Heizungsart
Fußbodenheizung
Details
Objektbeschreibung
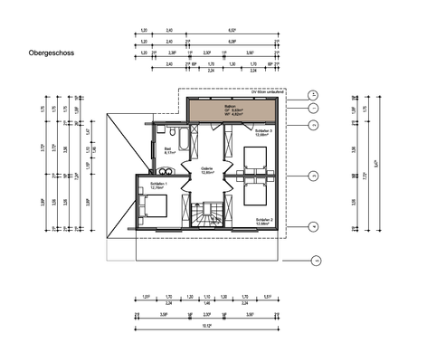
Entdecken Sie Ihr neues Zuhause in diesem charmanten Einfamilienhaus zum Kauf. Mit einer Wohnfläche von 155 m² bietet es ausreichend Platz für die ganze Familie. Das Haus verfügt über 5 Zimmer, 3 gemütliche Schlafzimmer und 1 modernes Badezimmer. Zusätzlich gibt es ein praktisches Gäste-WC.
Das Haus steht auf einem...
Ausstattung
Bauweise & Fassade:
Errichtet in energetisch optimierter Holzständerbauweise überzeugt das Haus durch hervorragende Dämmwerte, ein gesundes Raumklima und natürliche Materialien. Die moderne, verputzte Fassade verleiht dem Gebäude ein zeitloses, elegantes Erscheinungsbild.
Innenausstattung:
Das Haus besticht...
Preisinformation
2 Stellplätze, Kaufpreis je: 10.000,00 EUR
Weitere Informationen
Stichworte
Stellplatz vorhanden, Anzahl der Schlafzimmer: 3, Anzahl der Badezimmer: 1, Anzahl Balkone: 1, Balkon-Terrassen-Fläche: 25,00 m², Gartenfläche: 280,00 m², Bundesland: Bayern, 2 Etagen, Distanz zum Flughafen: 34.34, Distanz zum Hauptbahnhof: 2.19, Distanz zum Bus: 2.12
Anbieter der Immobilie
Immo Flair
Dorfplatz 10, 92245 Kümmersbruck
Online-ID: 2mjsn5t
Referenznummer: 3906093
Finde Angebote wie dieses
Hier geht es zu unserem Impressum, den Allgemeinen Geschäftsbedingungen, den Hinweisen zum Datenschutz und nutzungsbasierter Online-Werbung.