
Schröder Immobilien
Herr Stephan Schulze
004 ···
Nr. anzeigenPreise & Kosten
Kaution
3 Kaltmieten
Provision für Mieter
3 Nettokaltmieten zzgl. MwSt. zzgl. MwSt.
Warum sehe ich diese Anzeige? – Du siehst diese Anzeige basierend auf Ihrer Navigation auf unserer Website und den Suchkriterien, die du verwendet hast.
Lage
Unmittelbar an einem der Verkehrsknotenpunkte der Stadt Winsen (Luhe), befinden sich diese Halle.
Der Standort zeichnet sich insbesondere durch eine hervorragende Infrastruktur aus. So erreichen Sie nicht nur in weniger als 5 Minuten den Winsener Stadtkern, sondern auch die Autobahnzufahrt der A39 in Richtung der...
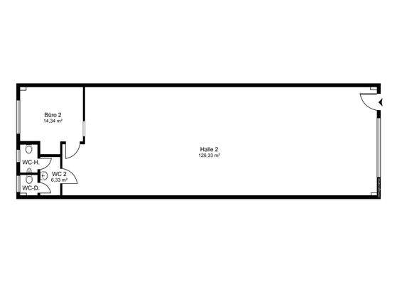
Die Industriefläche
Kategorie
Lagerhalle
Baujahr
2015
Energie & Heizung
Warum sehe ich diese Anzeige? – Du siehst diese Anzeige basierend auf Ihrer Navigation auf unserer Website und den Suchkriterien, die du verwendet hast.
Wärme
Strom
Energieausweistyp
Verbrauchsausweis
Gebäudetyp
Nicht-Wohngebäude
Baujahr laut Energieausweis
2015
Wesentliche Energieträger
GAS
Gültigkeit
bis 24.02.2032
Endenergieverbrauch (Wärme)
29,40 kWh/(m²·a)
Endenergieverbrauch (Strom)
10,40 kWh/(m²·a)
Weitere Energiedaten
Energieträger
Gas
Heizungsart
Ofen
Details
Objektbeschreibung
Diese moderne Gewerbehalle befindet sich in einer der besten Lagen von Winsen (Luhe). Zwischen dem bekannten Gewerbegebiet Torfmoor und der stark frequentierten Osttangente profitieren Sie von hoher Sichtbarkeit sowie einer optimalen Verkehrsanbindung. Über die A39 ist die Halle für Sie, Ihre Mitarbeiter und Lieferanten...
Ausstattung
- Büro
- Sanitäranlagen für Damen und Herren
- Mehrere Starkstromanschlüsse
- Elektrisches Rolltor
- Kalthalle
- Gute Beleuchtung
Weitere Informationen
Sonstiges
Mit diesem Exposé bieten wir Ihnen unsere Maklerdienstleistung an. Alle Angaben zur Immobilie basieren auf den uns vorliegenden Informationen des Eigentümers und wurden mit größter Sorgfalt zusammengestellt. Eine Gewähr für die Richtigkeit und Vollständigkeit übernehmen wir jedoch nicht.
Kommt durch...
Anbieter der Immobilie

Schröder Immobilien
Von-Somnitz-Ring 4a, 21423 Winsen (Luhe)
Online-ID: 2mjtd5b
Referenznummer: 44338
Finde Angebote wie dieses
Hier geht es zu unserem Impressum, den Allgemeinen Geschäftsbedingungen, den Hinweisen zum Datenschutz und nutzungsbasierter Online-Werbung.