Kmenta & Partner Immobilienmakler GmbH

Herr Lukas Frühstück

Wohnen, wo andere Urlaub machen.

€ 645.000
Kaufpreis
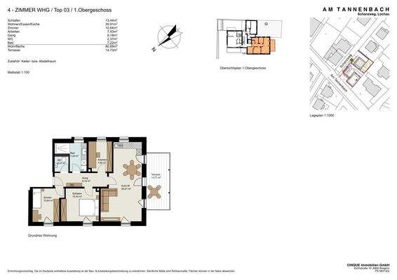
80,69 m²
Wohnfläche ca.
4
Zimmer
Finanzierung berechnen mit durchblicker

Der Anbieter dieses Objekts hat gegenüber der AVIV Germany GmbH als Betreiber dieses Online-Marktplatzes erklärt, nicht als Unternehmer im Sinne des § 1 KSchG zu handeln. Die im Verbraucherschutzrecht der Union verankerten Verbraucherrechte (insbesondere Informationspflichten und Rücktritts- bzw. Widerrufsrechte) finden auf den Vertrag zwischen dem Anbieter des Objekts und Ihnen (dem Interessenten) keine Anwendung.

Gewerblicher Anbieter

Der Anbieter dieses Objekts hat gegenüber der AVIV Germany GmbH als Betreiber dieses Online-Marktplatzes erklärt, als Unternehmer im Sinne des § 1 KSchG zu handeln.

AdresseStraße nicht freigegeben
6900 Bregenz 
Auf Karte ansehen

Preise & Kosten

Kaufpreis € 645.000

Provision für Käufer

Bitte beachte, das Angebot kann bei Vertragsabschluss die Zahlung einer Provision beinhalten. Weitere Informationen erhältst Du vom Anbieter.

Lage

Nur wenige Schritte trennen Sie vom Bodensee und dem charmanten Militärbad "Mili". Das Stadtzentrum von Bregenz ist in Sichtweite, und hinter dem Haus beginnt der Weg in die Berge - eine perfekte Verbindung von Stadt, See und Natur.
Die Liegenschaft befindet sich unmittelbar an der Stadtgrenze zu Bregenz und zählt zwar...

Mehr anzeigen

Die Wohnung

  • Balkon
  • barrierefrei
  • Böden: Fliesenboden, Parkett
  • Zustand: renoviert / saniert

Wohnanlage

  • Baujahr: 1920
  • Zustand: Altbau (bis 1945)
  • Personenaufzug

Energie & Heizung

Heizwärmebedarf (HWB)

B

44,00 kWh/(m²·a)

Gesamtenergieeffizienz (fGEE)

A

0,79

Weitere Energiedaten

Energieträger

Erdwärme

Heizungsart

Zentralheizung

Details

Objektbeschreibung

Das Bauvorhaben Am Tannenbach 23 in Lochau besteht aus insgesamt 8 Wohneinheiten und ausreichend Stellplätzen. Es entstehen 2-, 3- und 4-Zimmerwohnungen mit Wohnflächen von etwa 43 m² bis 130 m² - hier ist für jeden etwas dabei. Im Rahmen der Entwicklung wird das Bestandsgebäude...

Mehr anzeigen

Weitere Informationen

Stichworte
Carport vorhanden, Stellplatz vorhanden, Fahrradraum, Anzahl Balkone: 1, Balkon-Terrassen-Fläche: 14,85 m², Bundesland: Vorarlberg

Anbieter der Immobilie

Kmenta & Partner Immobilienmakler GmbH

im Durchschnitt  5,00  Sterne
(bei 2 Bewertungen)

Kirchstrasse 10, 6900 BREGENZ

user

Herr Lukas Frühstück

Dein Ansprechpartner

Anbieter-Website Anbieter-Profil Anbieter-Impressum

Online-ID: 2mjtp5l

Referenznummer: OBGC2025120516490727563215a5cea

Finde Angebote wie dieses

imageimageimage

Günstige Immobilienfinanzierung einfach online berechnen

Persönliches Angebot berechnen

Hier geht es zu unserem Impressum, den Allgemeinen Geschäftsbedingungen, den Hinweisen zum Datenschutz und nutzungsbasierter Online-Werbung.