
Werner und Sabine Sauer KG Fachmakler für Gewerbeimmobilien
Frau Sabine Sauer
030 ···
Nr. anzeigenPreise & Kosten
Provision für Mieter
provisionsfrei
Warum sehe ich diese Anzeige? – Du siehst diese Anzeige basierend auf Ihrer Navigation auf unserer Website und den Suchkriterien, die du verwendet hast.
Lage
Verkehrsgünstige Lage in der Potsdamer Innenstadt an der Garnisonkirche nahe der Hauptverkehrsstraße Breite Str. und dem Potsdamer Hauptbahnhof.
Büro-/Praxisfläche
Kategorie
Bürofläche
Baujahr
2025
Bezug
Q2 2026
Geschoss
Erdgeschoss
Details
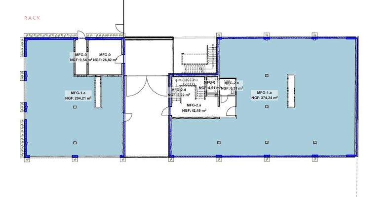
Objektbeschreibung
Auf einem ca. 25.000 m² Campusgelände - dem Kreativ Quartier - entstehen sieben architektonisch voneinander abgegrenzte Gebäude für unterschiedlichster Nutzungsanforderungen mitten in der Potsdamer Altstadt. Die angebotenen Flächen werden nach Mieterwunsch ausgebaut.
Ausstattung
Im Mietzins ist die folgende Grundausstattung enthalten:
- Raumaufteilung mittels Trockenbau nach Mieterwunsch
(Glaswände nach Absprache möglich).
- Wände und Decken in Sichtbeton.
- Teppichbodenbelag (Abweichung nach Absprache möglich)
- Doppelboden mit Bodentanks.
- voll ausgestattete Teeküchen...
Preisinformation
10 Garagenstellplätze
Nebenkosten pro qm: 5,00 EUR
Weitere Informationen
Sonstiges
Energieausweis in Bearbeitung, liegt zur Besichtigung vor.
Stichworte
Nutzfläche: 407,00 m², Gesamtfläche: 407,00 m², 4 Etagen
Online-ID: 2mjtz5q
Referenznummer: 3852#CqXe5N
Finde Angebote wie dieses
Hier geht es zu unserem Impressum, den Allgemeinen Geschäftsbedingungen, den Hinweisen zum Datenschutz und nutzungsbasierter Online-Werbung.