

CBRE GmbH
Frau Kathrin Ratsch
040 ···
Nr. anzeigenPreise & Kosten
Provision für Mieter
provisionsfrei
Warum sehe ich diese Anzeige? – Du siehst diese Anzeige basierend auf Ihrer Navigation auf unserer Website und den Suchkriterien, die du verwendet hast.
Lage
Angrenzend an Hammerbrook befindet sich das erweiterte Einzugsgebiet der City Süd und profitiert dabei von der gewachsenen Infrastruktur dieses Stadtteils mit zahlreichen Restaurants. Es besteht über die B5 eine ausgezeichnete Anbindung an die naheliegenden Bundesautobahnen. Diverse U-/S-Bahn Stationen und Busverbindungen...
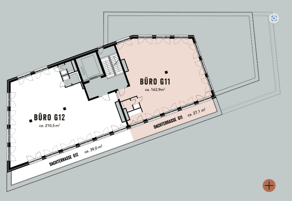
Büro-/Praxisfläche
Kategorie
Bürogebäude
Baujahr
2025
Bezug
4 Monate nach Vert
Geschoss
Erdgeschoss
Details
Ausstattung
BELÜFTUNG/KLIMATISIERUNG
mechanische Be-/Entlüftung, öffenbare Fenster
SONNENSCHUTZ
außenliegender Sonnenschutz
EDV-VERKABELUNG
Brüstungskabelkanäle
BODENBELAG
nach Mieterwunsch, Teppichboden/-fliesen
WANDSYSTEME/TÜREN
Gipskartonwände
DECKE
unverkleidete...
Weitere Informationen
Stichworte
Gesamtfläche: 3.025,40 m²
Anbieter der Immobilie
CBRE GmbH
Valentinskamp 70, 20355 Hamburg

Online-ID: 2mju75k
Referenznummer: 124238@13@0@219408
Finde Angebote wie dieses
Hier geht es zu unserem Impressum, den Allgemeinen Geschäftsbedingungen, den Hinweisen zum Datenschutz und nutzungsbasierter Online-Werbung.