

Schmitt Immobilien GmbH
Herr Christian Gärtig
069 ···
Nr. anzeigenPreise & Kosten
Provision für Käufer
3,57 % Käuferprovision inkl. 19 % MwSt.
3,57 % Käuferprovision inkl. 19 % MwSt., verdient und fällig mit Beurkundung des notariellen Kaufvertrages. Mit dem Verkäufer wurde ein provisionspflichtiger Maklervertrag in gleicher Höhe abgeschlossen.
Lage
Frankfurt-Goldstein - zwischen den Stadtteilen Niederrad und Schwanheim - grenzt im Süden an den Stadtwald und im Norden an das Mainufer. Der Stadtteil verfügt über viele Sport- und Freizeitangebote für Jung und Alt.
Die Goldsteinschule (Grundschule), die Leistungssportschule Carl-von-Weinberg-Schule (Gesamtschule mit...
Das Haus
Kategorie
Doppelhaushälfte
Baujahr
1968
Bezug
sofort
Energie & Heizung
Warum sehe ich diese Anzeige? – Du siehst diese Anzeige basierend auf Ihrer Navigation auf unserer Website und den Suchkriterien, die du verwendet hast.
Energieausweistyp
Bedarfsausweis
Gebäudetyp
Wohngebäude
Wesentliche Energieträger
Gas
Gültigkeit
07.08.2025 bis 06.08.2035
Effizienzklasse
H
Endenergiebedarf
265,24 kWh/(m²·a)
Weitere Energiedaten
Energieträger
Gas
Heizungsart
Zentralheizung
Details
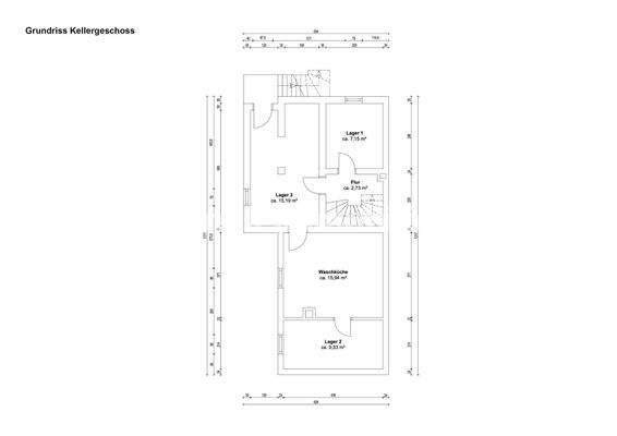
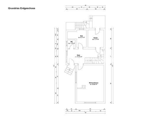
Objektbeschreibung
Diese gepflegte Doppelhaushälfte aus dem Baujahr 1932 und erweitert in 1968, verbindet den Charme einer gewachsenen Wohnlage mit dem Potenzial für individuelle Gestaltung, ideal für Familien oder Paare, die Raum, Ruhe und Grün zu schätzen wissen.
Das Haus bietet auf rund 126 m² Wohnfläche eine klassische, gut nutzbare...
Ausstattung
- Ab sofort bezugsfrei
- 5 Zimmer, Küche, Bad, Gäste-WC
- ca. 126 m² Wohnfläche
- ca. 738 m² Erbpacht-Grundstück
- Baujahr 1932 und 1968 erweitert
- Massivbauweise
- Doppelgarage mit integrierter Werkstatt und Grube
- Gepflegter Garten mit viel Potenzial
- Geräteschuppen
- Gas-Zentralheizung
-...
Preisinformation
2 Stellplätze
Weitere Informationen
Sonstiges
Schmitt Immobilien Website - https://www.schmitt-immo.de
Stichworte
Anzahl der Schlafzimmer: 4, Anzahl der Badezimmer: 1, Anzahl Balkone: 1, Balkon-Terrassen-Fläche: 5,00 m², Bundesland: Hessen, 3 Etagen, modernisiert: 2020
Anbieter der Immobilie
Schmitt Immobilien GmbH
Vogesenstraße 18, 60529 Frankfurt am Main

Online-ID: 2mjwk5n
Referenznummer: 4743
Finde Angebote wie dieses
Hier geht es zu unserem Impressum, den Allgemeinen Geschäftsbedingungen, den Hinweisen zum Datenschutz und nutzungsbasierter Online-Werbung.