

Callsen Immobilien
Herr Johannes Claudius Callsen
+49 ···
Nr. anzeigenPreise & Kosten
Kaution
8.000,00
Provision für Mieter
3.600,00 € zzgl. 19% MwSt.
Warum sehe ich diese Anzeige? – Du siehst diese Anzeige basierend auf Ihrer Navigation auf unserer Website und den Suchkriterien, die du verwendet hast.
Lage
Die Hafenstadt Kappeln ist ein anerkannter Erholungsort und im Sommer stark frequentiert. Mit ihren Sehenswürdigkeiten, dem reizvollen Hafen und der attraktiven Fußgängerzone lädt Kappeln zum Verweilen ein. Die vielfältige Geschäftswelt, sowie die gemütlichen Restaurants und Cafés sorgen für einen angenehmen Aufenthalt in...
Die Industriefläche
Kategorie
Lagerhalle
Bezug
01.06.2026
Details
Objektbeschreibung
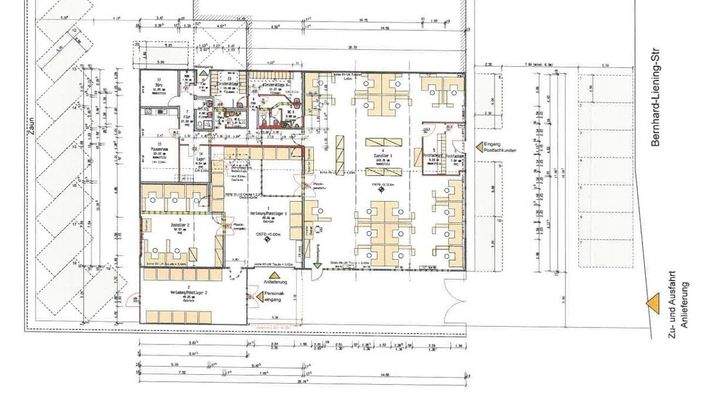
Diese großzügige Gewerbefläche überzeugt durch eine durchdachte Aufteilung, helle Räume und flexible Nutzungsmöglichkeiten. Der vordere Bereich des Gebäudes bietet auf einer Ebene eine ansprechende Kombination aus Büro-, Service- und Lagerflächen - ideal für Unternehmen, die Präsentation, Verwaltung und Logistik unter einem...
Weitere Informationen
Sonstiges
Möchten Sie Ihre eigenen Ideen und Eindrücke zu dieser Gewerbefläche sammeln? Dann vereinbaren Sie jetzt Ihren persönlichen Kennenlerntermin!
Alle Angaben zu dieser Immobilie erfolgen nach bestem Wissen, sind ohne Gewähr und basieren ausschließlich auf Informationen, die uns von unserem Auftraggeber bzw...
Anbieter der Immobilie

Online-ID: 2mjwn5f
Referenznummer: 2025_126
Finde Angebote wie dieses
Hier geht es zu unserem Impressum, den Allgemeinen Geschäftsbedingungen, den Hinweisen zum Datenschutz und nutzungsbasierter Online-Werbung.