




1 / 32



1 / 32

Sonstiges zum Kauf • als Kapitalanlage geeignet195000 €195.000 €
195000 €195.000 €
Unglaubliches Bauprojekt mit 8 Chalet's in Serbien's Schneegebiet!
Wenn Sie auf der Suche nach etwas Besonderem in einem genehmigten Naturschutzgebiet sind, haben wir genau das Richtige für Sie. Insgesamt entstehen hier acht exklusive Villen. Vier davon sind bereits fertiggestellt, die weiteren vier werden im kommenden Frühjahr bezugsbereit sein.
Zum angegebenen Preis erhalten Sie eines dieser Häuser - oder Sie können das komplette Paket 7 + 1 erwerben. Das bedeutet: Sie bekommen ein zusätzliches Haus im Wert von 220.000 € kostenlos dazu.
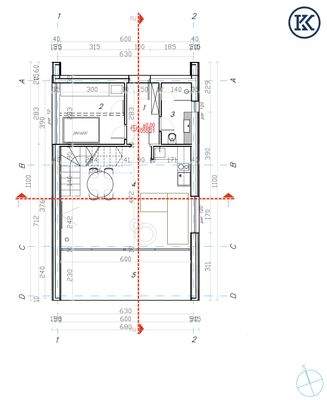
Jede Villa bietet 100 m² Wohnfläche, dazu eine Terrasse von etwa 15 m² sowie einen eigenen Autostellplatz. Die Häuser werden schlüsselfertig übergeben und verfügen über eine hochwertige Ausstattung:
Fußbodenheizung
Parkettboden
Modernes Badezimmer
Große Panoramafenster
Helle, skandinavisch inspirierte Architektur mit viel Tageslicht
Die Villen bieten Ihnen einen Rückzugsort, an dem Sie das ganze Jahr über entspannen können - die Häuser sind 365 Tage im Jahr bewohnbar.
Die Lage ist ruhig und naturnah, dennoch befinden Sie sich in der Nähe der Skipisten von Zlatibor, einem bekannten Wintersportort, der bereits Austragungsort bedeutender Wettkämpfe war. In der Region ist zudem der Bau einer sogenannten "Gold City" geplant, was das Wertsteigerungspotenzial der Immobilien noch weiter erhöht. Auch ein neuer Flughafen ist in Planung, was die Erreichbarkeit verbessern und die Region weiter aufwerten wird.
Zlatibor liegt nur etwa 2 Stunden Fahrtzeit von Belgrad entfernt. Die Umgebung bietet zahlreiche Möglichkeiten zur Erholung und Freizeitgestaltung: Berge, frisches Quellwasser, Sehenswürdigkeiten, wunderschöne Wanderwege sowie Naturhighlights wie die berühmte Stopica-Höhle, die an alpine Attraktionen in Österreich erinnert.
Zum angegebenen Preis erhalten Sie eines dieser Häuser - oder Sie können das komplette Paket 7 + 1 erwerben. Das bedeutet: Sie bekommen ein zusätzliches Haus im Wert von 220.000 € kostenlos dazu.
Jede Villa bietet 100 m² Wohnfläche, dazu eine Terrasse von etwa 15 m² sowie einen eigenen Autostellplatz. Die Häuser werden schlüsselfertig übergeben und verfügen über eine hochwertige Ausstattung:
Fußbodenheizung
Parkettboden
Modernes Badezimmer
Große Panoramafenster
Helle, skandinavisch inspirierte Architektur mit viel Tageslicht
Die Villen bieten Ihnen einen Rückzugsort, an dem Sie das ganze Jahr über entspannen können - die Häuser sind 365 Tage im Jahr bewohnbar.
Die Lage ist ruhig und naturnah, dennoch befinden Sie sich in der Nähe der Skipisten von Zlatibor, einem bekannten Wintersportort, der bereits Austragungsort bedeutender Wettkämpfe war. In der Region ist zudem der Bau einer sogenannten "Gold City" geplant, was das Wertsteigerungspotenzial der Immobilien noch weiter erhöht. Auch ein neuer Flughafen ist in Planung, was die Erreichbarkeit verbessern und die Region weiter aufwerten wird.
Zlatibor liegt nur etwa 2 Stunden Fahrtzeit von Belgrad entfernt. Die Umgebung bietet zahlreiche Möglichkeiten zur Erholung und Freizeitgestaltung: Berge, frisches Quellwasser, Sehenswürdigkeiten, wunderschöne Wanderwege sowie Naturhighlights wie die berühmte Stopica-Höhle, die an alpine Attraktionen in Österreich erinnert.
Merkmale
???????? English Version
If you are looking for something special in an officially approved nature reserve, we have exactly what you need. A total of eight exclusive villas are being built here. Four of them are already completed, and the remaining four will be ready by next spring.
At the listed price, you will receive one of these houses - or you can purchase the entire 7 + 1 package, meaning you get an additional house worth €220,000 completely free.
Each villa offers 100 m² of living space, plus a terrace of about 15 m² and a private parking space. The houses are delivered turnkey and come with high-quality features, including:
Underfloor heating
Wooden parquet flooring
Modern bathroom
Large panoramic windows
Bright, Scandinavian-inspired design with plenty of natural light
These villas provide a perfect retreat where you can relax throughout the entire year - the houses are habitable 365 days a year.
The location is peaceful and surrounded by nature, yet close to the ski slopes of Zlatibor, a well-known winter sports destination that has hosted major competitions. The region is undergoing further development, including the planned construction of the so-called "Gold City", which significantly increases the investment and value-growth potential. A new airport is also planned, which will further improve accessibility.
Zlatibor is only about 2 hours' drive from Belgrade. The surrounding area offers numerous opportunities for recreation: mountains, fresh spring water, attractions, beautiful hiking routes, and natural highlights such as the famous Stopica Cave, reminiscent of alpine sites in Austria.
If you are looking for something special in an officially approved nature reserve, we have exactly what you need. A total of eight exclusive villas are being built here. Four of them are already completed, and the remaining four will be ready by next spring.
At the listed price, you will receive one of these houses - or you can purchase the entire 7 + 1 package, meaning you get an additional house worth €220,000 completely free.
Each villa offers 100 m² of living space, plus a terrace of about 15 m² and a private parking space. The houses are delivered turnkey and come with high-quality features, including:
Underfloor heating
Wooden parquet flooring
Modern bathroom
Large panoramic windows
Bright, Scandinavian-inspired design with plenty of natural light
These villas provide a perfect retreat where you can relax throughout the entire year - the houses are habitable 365 days a year.
The location is peaceful and surrounded by nature, yet close to the ski slopes of Zlatibor, a well-known winter sports destination that has hosted major competitions. The region is undergoing further development, including the planned construction of the so-called "Gold City", which significantly increases the investment and value-growth potential. A new airport is also planned, which will further improve accessibility.
Zlatibor is only about 2 hours' drive from Belgrade. The surrounding area offers numerous opportunities for recreation: mountains, fresh spring water, attractions, beautiful hiking routes, and natural highlights such as the famous Stopica Cave, reminiscent of alpine sites in Austria.
Grundrisse
Grundrisse
1 / 13
Realisiere Dein Projekt
Bausubstanz und Energie
Der Anbieter hat keine Informationen zu Energieverbrauch oder Zustand der Immobilie bereit gestellt.
Preisdetails
Kaufpreis
195000 €195.000 €
Provision für Käufer
Bitte beachte, das Angebot kann bei Vertragsabschluss die Zahlung einer Provision beinhalten. Weitere Informationen erhältst Du vom Anbieter.
Lage

Cara Lazara 9, Poz?ega (31210)
???????? Srpska verzija
Ako trazite nesto posebno u zasticenom prirodnom podrucju koje je zvanicno odobreno, imamo idealnu ponudu za vas. U izgradnji je ukupno osam ekskluzivnih vila. Cetiri su vec zavrsene, dok ce preostale cetiri biti spremne na prolece.
Po navedenoj ceni dobijate jednu od ovih kuca - ili mozete kupiti kompletan paket 7 + 1, sto znaci da dobijate dodatnu kucu u vrednosti od 220.000 € potpuno besplatno.
Svaka vila ima 100 m² stambenog prostora, plus terasu od oko 15 m² i privatno parking mesto. Kuce se isporucuju po sistemu "kljuc u ruke" i poseduju visokokvalitetnu opremu, ukljucujuci:
Podno grejanje
Parket
Moderan kupatilski enterijer
Velike panoramske prozore
Svetao, skandinavski stil sa mnogo dnevne svetlosti
Vile su idealne za celogodisnji boravak - mogu se koristiti tokom svih 365 dana u godini.
Lokacija je mirna i okruzena prirodom, a ipak nalazi se u blizini ski-staza na Zlatiboru, poznatom zimskom centru gde su se vec odrzavala velika takmicenja. U planu je i izgradnja tzv. "Gold City", sto dodatno povecava investicioni i vrednosni potencijal regiona. Planira se i novi aerodrom, koji ce dodatno poboljsati pristupacnost.
Zlatibor je udaljen oko 2 sata voznje od Beograda. Okolina nudi brojne mogucnosti za odmor i rekreaciju: planine, izvorsku vodu, znamenitosti, prelepe pesacke staze i prirodne atrakcije poput cuvene Stopica pecine, koja podseca na alpske lokalitete u Austriji.
Ako trazite nesto posebno u zasticenom prirodnom podrucju koje je zvanicno odobreno, imamo idealnu ponudu za vas. U izgradnji je ukupno osam ekskluzivnih vila. Cetiri su vec zavrsene, dok ce preostale cetiri biti spremne na prolece.
Po navedenoj ceni dobijate jednu od ovih kuca - ili mozete kupiti kompletan paket 7 + 1, sto znaci da dobijate dodatnu kucu u vrednosti od 220.000 € potpuno besplatno.
Svaka vila ima 100 m² stambenog prostora, plus terasu od oko 15 m² i privatno parking mesto. Kuce se isporucuju po sistemu "kljuc u ruke" i poseduju visokokvalitetnu opremu, ukljucujuci:
Podno grejanje
Parket
Moderan kupatilski enterijer
Velike panoramske prozore
Svetao, skandinavski stil sa mnogo dnevne svetlosti
Vile su idealne za celogodisnji boravak - mogu se koristiti tokom svih 365 dana u godini.
Lokacija je mirna i okruzena prirodom, a ipak nalazi se u blizini ski-staza na Zlatiboru, poznatom zimskom centru gde su se vec odrzavala velika takmicenja. U planu je i izgradnja tzv. "Gold City", sto dodatno povecava investicioni i vrednosni potencijal regiona. Planira se i novi aerodrom, koji ce dodatno poboljsati pristupacnost.
Zlatibor je udaljen oko 2 sata voznje od Beograda. Okolina nudi brojne mogucnosti za odmor i rekreaciju: planine, izvorsku vodu, znamenitosti, prelepe pesacke staze i prirodne atrakcije poput cuvene Stopica pecine, koja podseca na alpske lokalitete u Austriji.
Weitere Informationen
Sonstiges
Kaufnebenkosten für Käufer in Serbien
Beim Erwerb einer Immobilie in Serbien fallen für den Käufer folgende Nebenkosten an:
Grunderwerbsteuer: 2,5 % des Kaufpreises (bei gebrauchten Immobilien).
Mehrwertsteuer (MwSt.): 10 % bei Neubauten im Erstverkauf (anstelle der Grunderwerbsteuer).
Notarkosten: ca. 300-500 €, abhängig vom Vertragswert.
Grundbucheintragung: etwa 50 €.
Maklerprovision beträgt 3 % zzgl. 20 % Umsatzsteuer
Optionale Rechts- und Übersetzungskosten: je nach Bedarf.
Insgesamt sollten Käufer in Serbien mit ca. 5-10 % des Kaufpreises an Kaufnebenkosten rechnen.???????? English Version
Additional Purchase Costs for Buyers in Serbia
When buying a property in Serbia, buyers typically incur the following additional costs:
Property Transfer Tax: 2.5% of the purchase price (for resale/used properties).
Value Added Tax (VAT): 10% for new properties in the first sale (instead of the transfer tax).
Notary Fees: approximately €300-500, depending on the contract value.
Land Registry Registration: around €50.
The brokerage fee is 3% plus 20% VAT.
Optional legal and translation fees: depending on the buyer's needs.
Overall, buyers in Serbia should expect additional costs of approximately 5-10% of the purchase price.
Kupovni troskovi za kupce u Srbiji
Prilikom kupovine nekretnine u Srbiji, kupci obicno imaju sledece dodatne troskove:
Porez na prenos apsolutnih prava: 2,5% od kupoprodajne cene (za polovne nekretnine).
PDV (Porez na dodatu vrednost): 10% za nove nekretnine u prvoj prodaji (umesto poreza na prenos).
Notarske takse: oko 300-500 €, u zavisnosti od vrednosti ugovora.
Upis u katastar/zemljisne knjige: oko 50 €.
Provizija agenta za nekretnine (ako je primenljivo): obicno 2-3% od kupoprodajne cene.
Dodatni troskovi za pravne i prevodilacke usluge: po potrebi.
Sveukupno, kupci u Srbiji treba da racunaju na dodatne troskove od oko 5-10% od kupoprodajne cene.
Beim Erwerb einer Immobilie in Serbien fallen für den Käufer folgende Nebenkosten an:
Grunderwerbsteuer: 2,5 % des Kaufpreises (bei gebrauchten Immobilien).
Mehrwertsteuer (MwSt.): 10 % bei Neubauten im Erstverkauf (anstelle der Grunderwerbsteuer).
Notarkosten: ca. 300-500 €, abhängig vom Vertragswert.
Grundbucheintragung: etwa 50 €.
Maklerprovision beträgt 3 % zzgl. 20 % Umsatzsteuer
Optionale Rechts- und Übersetzungskosten: je nach Bedarf.
Insgesamt sollten Käufer in Serbien mit ca. 5-10 % des Kaufpreises an Kaufnebenkosten rechnen.???????? English Version
Additional Purchase Costs for Buyers in Serbia
When buying a property in Serbia, buyers typically incur the following additional costs:
Property Transfer Tax: 2.5% of the purchase price (for resale/used properties).
Value Added Tax (VAT): 10% for new properties in the first sale (instead of the transfer tax).
Notary Fees: approximately €300-500, depending on the contract value.
Land Registry Registration: around €50.
The brokerage fee is 3% plus 20% VAT.
Optional legal and translation fees: depending on the buyer's needs.
Overall, buyers in Serbia should expect additional costs of approximately 5-10% of the purchase price.
Kupovni troskovi za kupce u Srbiji
Prilikom kupovine nekretnine u Srbiji, kupci obicno imaju sledece dodatne troskove:
Porez na prenos apsolutnih prava: 2,5% od kupoprodajne cene (za polovne nekretnine).
PDV (Porez na dodatu vrednost): 10% za nove nekretnine u prvoj prodaji (umesto poreza na prenos).
Notarske takse: oko 300-500 €, u zavisnosti od vrednosti ugovora.
Upis u katastar/zemljisne knjige: oko 50 €.
Provizija agenta za nekretnine (ako je primenljivo): obicno 2-3% od kupoprodajne cene.
Dodatni troskovi za pravne i prevodilacke usluge: po potrebi.
Sveukupno, kupci u Srbiji treba da racunaju na dodatne troskove od oko 5-10% od kupoprodajne cene.
Weitere Services
Lust auf eine Besichtigung?
Eine Frage zur Immobilie?
Über den Anbieter
KLASAN & Partner Immobilien GmbH & Co KGMaklerbüro
Groß-Enzersdorfer Str. 52/1/01, 1220 WIEN

Frau Katharina KlasanDein Kontakt
Online-ID: 2mjx55l
Referenznummer: 25/12630
Wie zufrieden bist du mit dieser Seite (nicht mit der Immobilie selbst)?


