
Immobilienkanzlei Oberschwaben GmbH
Herr Kilian Steinegger
004 ···
Nr. anzeigenPreise & Kosten
Provision für Käufer
4,76 % inkl. MwSt.
Lage
Das Mehrfamilienhaus befindet sich in der idyllischen Ortschaft Mühlhausen, einem Teilort der Gemeinde Eberhardzell im Landkreis Biberach. Die Lage besticht durch ihre ruhige, ländliche Atmosphäre und die typische oberschwäbische Umgebung mit Feldern, Wiesen und weiten Blicken ins Grüne - ein Ort, an dem man Natur, Ruhe und...
Das Haus
Kategorie
Mehrfamilienhaus
Baujahr
1971
Bezug
nach Vereinbarung
Energie & Heizung
Warum sehe ich diese Anzeige? – Du siehst diese Anzeige basierend auf Ihrer Navigation auf unserer Website und den Suchkriterien, die du verwendet hast.
Energieausweistyp
Bedarfsausweis
Gebäudetyp
Wohngebäude
Baujahr laut Energieausweis
1971
Wesentliche Energieträger
ELECTRICITY
Gültigkeit
07.11.2025 bis 07.11.2035
Effizienzklasse
C
Endenergiebedarf
98,50 kWh/(m²·a)
Details
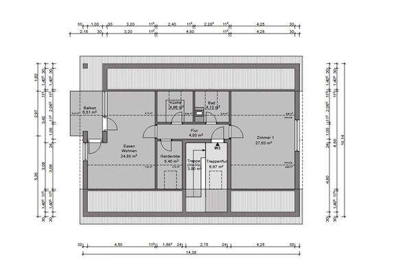
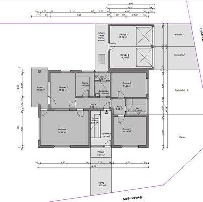
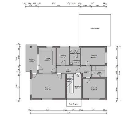
Objektbeschreibung
Dieses gepflegte Mehrfamilienhaus überzeugt durch seine solide Bauweise, moderne Ausstattung und attraktive Aufteilung. Es umfasst drei Wohneinheiten und ein modernisiertes Untergeschoss. Das Objekt eignet sich sowohl zur Eigennutzung als auch hervorragend als Kapitalanlage.
Im Untergeschoss befinden sich vier...
Ausstattung
* drei Einbauküchen
* drei Balkone
* großes Grundstück
* Doppelgarage
* zwei Außenstellplätze
* Energieeffizienzklasse C
Preisinformation
4 Stellplätze
Weitere Informationen
Stichworte
Nutzfläche: 90,00 m², modernisiert: 2025
Anbieter der Immobilie
Immobilienkanzlei Oberschwaben GmbH
Schützenstr. 5, 88250 Weingarten
Online-ID: 2mjxx5q
Referenznummer: 85
Finde Angebote wie dieses
Hier geht es zu unserem Impressum, den Allgemeinen Geschäftsbedingungen, den Hinweisen zum Datenschutz und nutzungsbasierter Online-Werbung.