allkauf haus

Herr Christoph Haas

Setzt jetzt den Grundstein für Euer Traumhaus!

€ 567.379
Kaufpreis
113,64 m²
Wohnfläche ca.
3
Zimmer
470 m²
Grundstücksfl. ca.

Der Anbieter dieses Objekts hat gegenüber der AVIV Germany GmbH als Betreiber dieses Online-Marktplatzes erklärt, nicht als Unternehmer im Sinne des § 1 KSchG zu handeln. Die im Verbraucherschutzrecht der Union verankerten Verbraucherrechte (insbesondere Informationspflichten und Rücktritts- bzw. Widerrufsrechte) finden auf den Vertrag zwischen dem Anbieter des Objekts und Ihnen (dem Interessenten) keine Anwendung.

Gewerblicher Anbieter

Der Anbieter dieses Objekts hat gegenüber der AVIV Germany GmbH als Betreiber dieses Online-Marktplatzes erklärt, als Unternehmer im Sinne des § 1 KSchG zu handeln.

AdresseStraße nicht freigegeben
85055 Ingolstadt 
(Etting)
Auf Karte ansehen

Preise & Kosten

Kaufpreis € 567.379

Provision für Käufer

Bitte beachte, das Angebot kann bei Vertragsabschluss die Zahlung einer Provision beinhalten. Weitere Informationen erhältst Du vom Anbieter.

Lage

Bitte haben Sie Verständnis dafür, dass wir keine direkten Gespräche über Grundstücke führen. Wir bieten stattdessen einen umfassenden und kostenfreien Grundstücksservice für alle Hausinteressenten an. Wir möchten betonen, dass wir keine Grundstücksmakler sind, sondern vielmehr daran interessiert sind, Ihnen bei der Suche...

Mehr anzeigen

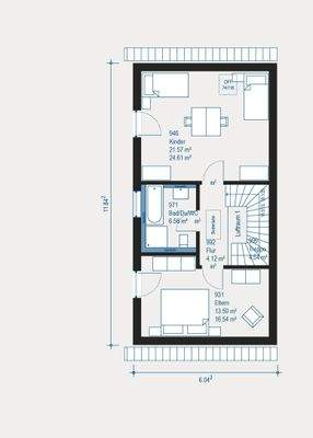
Das Haus

Kategorie

Doppelhaushälfte

  • Zustand: Neubau, projektiert
  • Gäste-WC
  • barrierefrei

Energie & Heizung

Weitere Energiedaten

Haustyp

KfW 40

Heizungsart

Fußbodenheizung, Luft-/Wasser-Wärmepumpe

Details

Objektbeschreibung

Das Doppelhaus Double 1 heißt Sie herzlich willkommen, um Ihre Wohnträume zu erkunden und nach Ihren Vorstellungen zu gestalten. Ein lichtdurchfluteter Wohnbereich harmoniert wunderbar mit einer modernen Küche und einem einladenden Essbereich, wodurch ein warmes und einladendes Zuhause entsteht. In der oberen Etage erwarten...

Mehr anzeigen

Ausstattung

Im Preis enthalten:

- Kaufpreis für aktuell verfügbaren Bauplatz
- Dein tolles Energieeffizienzhaus in KfW55 Standard (auf
Wusch in KfW 40+)
- Architektenleistung: Entwurfsplanung und Erstellung der
Bauanträge
- Planänderungspauschale für freie Grundrissanpassung
- Vermessungsleistung des...

Mehr anzeigen

Weitere Informationen

Sonstiges
Allkauf steht für maximale Sicherheit und Zuverlässigkeit beim Bau Ihres Eigenheimes. Wir verstehen die Sorgen und Herausforderungen, die mit dem Bau eines eigenen Hauses verbunden sind, und bieten Ihnen umfassende Lösungen:

- Kurze Lieferzeiten
- Verbindliche Liefergarantie
- Garantierte...

Mehr anzeigen

Anbieter der Immobilie

Partner

allkauf haus

Kimmerle-Ring 2, 89312 Günzburg

user

Herr Christoph Haas

Dein Ansprechpartner

Anbieter-Website Anbieter-Profil Anbieter-Impressum

Online-ID: 2mjy359

Referenznummer: KÖ-CH-D1-85055-KW4g-J-26279

Finde Angebote wie dieses

imageimageimage

Hier geht es zu unserem Impressum, den Allgemeinen Geschäftsbedingungen, den Hinweisen zum Datenschutz und nutzungsbasierter Online-Werbung.