

Stein & Co Vermögensverwaltung GmbH
Herr Bernd Raeuber
033 ···
Nr. anzeigenPreise & Kosten
Kaution
4200
Warum sehe ich diese Anzeige? – Du siehst diese Anzeige basierend auf Ihrer Navigation auf unserer Website und den Suchkriterien, die du verwendet hast.
Lage
Die Doppelhaushälfte befindet sich im Ortsteil Töplitz, welcher zur Stadt Werder (Havel) gehört. Töplitz liegt ruhig und idyllisch in einer Ortslage und bietet seinen Bewohnern eine entspannte Lebensweise. Die unmittelbare Umgebung besticht durch malerische Landschaften, zahlreiche Seen und eine Vielzahl an...
Das Haus
Kategorie
Doppelhaushälfte
Baujahr
1996
Bezug
01.01.2026
Energie & Heizung
Warum sehe ich diese Anzeige? – Du siehst diese Anzeige basierend auf Ihrer Navigation auf unserer Website und den Suchkriterien, die du verwendet hast.
Energieausweistyp
Verbrauchsausweis
Gebäudetyp
Wohngebäude
Baujahr laut Energieausweis
1996
Wesentliche Energieträger
Erdgas leicht
Endenergieverbrauch
55,30 kWh/(m²·a) - Warmwasser enthalten
Weitere Energiedaten
Haustyp
Massivhaus
Energieträger
Gas
Details
Objektbeschreibung
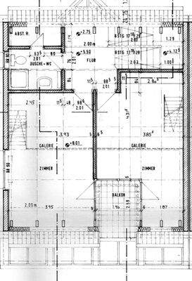
Diese moderne Doppelhaushälfte wurde im Jahr 1996 in Massivbauweise errichtet und bietet eine Wohnfläche von insgesamt 162,5 Quadratmetern auf drei Etagen. Das Gebäude verfügt über zwei Parkplätze und eine Gas-Heizung. Zudem gibt es eine Terrasse, einen Balkon und einen Keller.
Die Immobilie verfügt über insgesamt vier...
Ausstattung
Erdgeschoss
. Nach oben offener Wohnraum
. Wintergarten
. Terrasse
. Küche mit Einbauküche
. Gäste WC
Obergeschoss
. Schlafraum 1
. Balustrade
. Wannenbad mit Fenster
. Abstellraum
Dachgeschoss
. Schlafraum 2
. Schlafraum 3
. Duschbad mit Fenster
Kellergeschoss
...
Preisinformation
2 Stellplätze
Weitere Informationen
Sonstiges
Wir benötigen von Mietinteressenten:
. Unser Formular zur Selbstauskunft, bitte ausfüllen und unterschreiben
. Formular Schufa-Hinweis zu Mietanträgen, bitte unterschreiben - kostenfrei für Interessenten
. Einkommensnachweise der letzten 3 Monate
. Eine Mietschuldenfreiheitsbestätigung des...
Dokumente
Anbieter der Immobilie

Stein & Co Vermögensverwaltung GmbH

Online-ID: 2mjys5j
Referenznummer: 1418#8l0iiL
Finde Angebote wie dieses
Hier geht es zu unserem Impressum, den Allgemeinen Geschäftsbedingungen, den Hinweisen zum Datenschutz und nutzungsbasierter Online-Werbung.