

SIV Mittelsachsen GmbH
Frau Manja Herrmann
037 ···
Nr. anzeigenPreise & Kosten
Kaution
4.000,00
Warum sehe ich diese Anzeige? – Du siehst diese Anzeige basierend auf Ihrer Navigation auf unserer Website und den Suchkriterien, die du verwendet hast.
Lage
Freiberg ist eine Kleinstadt mit ca. 40.000 Einwohnern und liegt an der Bundesstraße B 173 zwischen Chemnitz und Dresden.
Bekannt ist Freiberg durch die älteste montanwissenschaftliche Universität der Welt. So zog es z.B. schon Alexander von Humbold zum Studium hierher.
Besonders für Touristen ein Muss, der geschlossene...
Das Haus
Kategorie
Einfamilienhaus
Baujahr
1994
Bezug
01.01.2026
Derzeitige Nutzung
vermietet
Energie & Heizung
Warum sehe ich diese Anzeige? – Du siehst diese Anzeige basierend auf Ihrer Navigation auf unserer Website und den Suchkriterien, die du verwendet hast.
Energieausweistyp
Verbrauchsausweis
Gebäudetyp
Wohngebäude
Baujahr laut Energieausweis
1994
Wesentliche Energieträger
Gas
Gültigkeit
04.04.2022 bis 04.04.2032
Effizienzklasse
G
Endenergieverbrauch
204,20 kWh/(m²·a) - Warmwasser enthalten
Weitere Energiedaten
Energieträger
Gas
Details
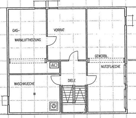
Objektbeschreibung
Exklusives Einfamilienhaus am Stadtrand von Freiberg sucht neue Bewohner! Das großzügige, lichtdurchflutete HUF-Haus bietet ausreichend Platz für Ihre Familie. Im Erdgeschoss befindet sich ein geräumiges Wohnzimmer mit Essbereich (44m²) und offener Küche mit kleiner Speisekammer. Die bodentiefen Fenster bieten einen...
Preisinformation
1 Carportplatz, Miete: 50,00 EUR
Nettokaltmiete: 2.000,00 EUR
Weitere Informationen
Sonstiges
Alle Angaben haben wir vom Auftraggeber erhalten. Für deren Richtigkeit können wir keine Gewähr übernehmen. Einen Zwischenverkauf bzw. eine Zwischenvermietung behält sich der Auftraggeber ausdrücklich vor.
Stichworte
Carport vorhanden, Nutzfläche: 63,00 m², Anzahl der Badezimmer: 2, Anzahl der separaten...
Anbieter der Immobilie

Online-ID: 2mjzz5m
Referenznummer: MH-2025-0289
Finde Angebote wie dieses
Hier geht es zu unserem Impressum, den Allgemeinen Geschäftsbedingungen, den Hinweisen zum Datenschutz und nutzungsbasierter Online-Werbung.