WIS Wohnungsbaugesellschaft im Spreewald mbH

Frau Katrin Schiemenz

ANGEBOT: Spare zwei Kaltmieten - 4-Raum-Wohnung mit Aussicht

€ 427,14
Kaltmiete zzgl. NK
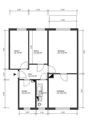
67,80 m²
Wohnfläche ca.
4
Zimmer

Der Anbieter dieses Objekts hat gegenüber der AVIV Germany GmbH als Betreiber dieses Online-Marktplatzes erklärt, nicht als Unternehmer im Sinne des § 1 KSchG zu handeln. Die im Verbraucherschutzrecht der Union verankerten Verbraucherrechte (insbesondere Informationspflichten und Rücktritts- bzw. Widerrufsrechte) finden auf den Vertrag zwischen dem Anbieter des Objekts und Ihnen (dem Interessenten) keine Anwendung.

Gewerblicher Anbieter

Der Anbieter dieses Objekts hat gegenüber der AVIV Germany GmbH als Betreiber dieses Online-Marktplatzes erklärt, als Unternehmer im Sinne des § 1 KSchG zu handeln.

AdresseW.-Pieck-Str. 29
03226 Vetschau/Spreewald 
Auf Karte ansehen

Preise & Kosten

Kaltmiete € 427,14 Nebenkosten € 103 Heizkosten € 102 Warmmiete € 632,14 Preis/m² € 6,30

Kaution

1.281,00

Lage

Die Wohnung

Wohnungslage

4. Geschoss

Bezug

01.02.2026

  • Bad mit Fenster
  • Balkon

Wohnanlage

  • Baujahr: 1961

Energie & Heizung

A+
A
B
C
D
E
F
G
H
0 25 50 75 100 125 150 175 200 225 250 +

Energieausweistyp

Verbrauchsausweis

Gebäudetyp

Wohngebäude

Wesentliche Energieträger

KWK FOSSIL

Gültigkeit

seit 12.04.2018

Effizienzklasse

B

Endenergieverbrauch

60,00 kWh/(m²·a)

Details

Ausstattung

*Frisch saniert, vier Zimmer, Balkon mit Grünblick - und das Beste: Die ersten zwei Monate wohnst du komplett ohne Kaltmiete!

Diese helle 4-Raum-Wohnung liegt im obersten Geschoss. Hier hat man vom Balkon einen schönen Blick in die Baumkronen. Das Bad ist mit einer Badewanne und einem Fenster ausgestattet und sorgt...

Mehr anzeigen

Weitere Informationen

Stichworte
Anzahl Balkone: 1, Wohnungsnr.: 5203.29.8

Anbieter der Immobilie

WIS Wohnungsbaugesellschaft im Spreewald mbH

im Durchschnitt  5,00  Sterne
(bei 2 Bewertungen)

Oer-Erkenschwick-Platz 1, 03222 Lübbenau

user

Frau Katrin Schiemenz

Dein Ansprechpartner

Anbieter-Profil Anbieter-Impressum

Online-ID: 2mk2q5m

Referenznummer: 5203.29.8

Finde Angebote wie dieses

imageimageimage

Hier geht es zu unserem Impressum, den Allgemeinen Geschäftsbedingungen, den Hinweisen zum Datenschutz und nutzungsbasierter Online-Werbung.